Офис пр-т Владимира Ивасюка 12Є, 85м2

  • Оболонский район пр-т Владимира Ивасюка 12Є
  • Код: RC-217-501
  • Добавлено: 06.11.2025
  • Добавить в избранное
Тип рынка
Вторичный рынок
Улица
пр-т Владимира Ивасюка 12Є
Призначення
Офисное помещение
Этаж
28 Этаж
Этажность
28 этажный дом
Общая площадь
85 м2
Общее состояние
С ремонтом
Цена:
35 000 грн.
832 USD
  • AXIS Real Estate
  • AXIS Real Estate
  • AXIS Real Estate
Описание объекта

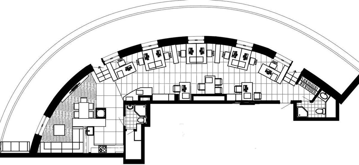
Офисное помещение. Светлое помещение площадью 85 м², ориентированное на западную сторону, часть окон достигают пола. Помещение со свежим качественным ремонтом, дополнительно утеплено. Планировка open space, в стиле loft. Последний, 28 этаж. Тихое, уютное. Помещение относится к нежилому фонду и имеет открытую террасу 90 м² с панорамным видом на Днепр и город. На террасу из помещения есть два выхода. В помещении может быть обустроено до 10 рабочих мест. Есть два санузла, один с европейским душем. В каждом санузле бойлер и вентиляция. Кухня открытая ~ 7 м². Вытяжка на кухне, электроплита, кухонная мебель, холодильник.

Дополнительная информация

Похожие предложения