Office pr-t Volodimira Іvasyuka 12Є, 85m2

  • Obolonskyi District pr-t Volodimira Іvasyuka 12Є
  • Code: RC-217-501
  • Added by: 06.11.2025
  • Add to favorites
Market type
Secondary market
Street
pr-t Volodimira Іvasyuka 12Є
Purpose
Office Premise
Floor
28 Floor
Number of storeys
28 storey house
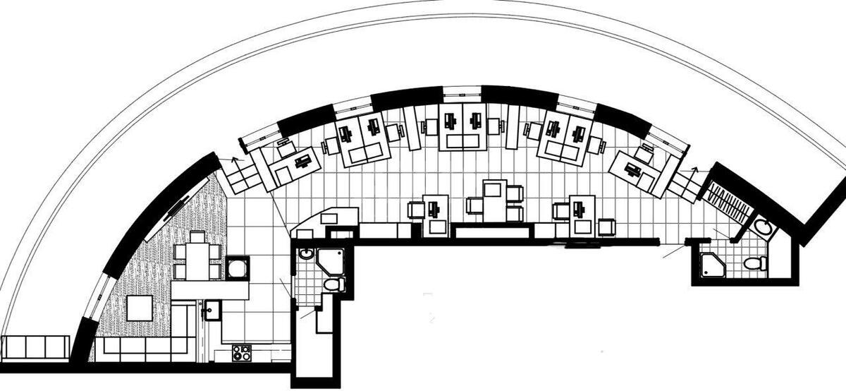
Total area
85 м2
General state
With repair
Price:
35 000 UAH
832 USD
  • AXIS Real Estate
  • AXIS Real Estate
  • AXIS Real Estate
Description of the object

Office space. Bright room with an area of 85 m², oriented to the west, some of the windows reach the floor. The room is freshly renovated and additionally insulated. Open space layout, loft style. The last, 28th floor. Quiet and cozy. The room belongs to the non-residential fund and has an open terrace of 90 m² with panoramic views of the Dnipro and the city. There are two exits to the terrace from the room. The premises can be equipped with up to 10 workplaces. There are two bathrooms, one with a European shower. Each bathroom has a boiler and ventilation. The kitchen is open ~ 7 m². Kitchen hood, electric stove, kitchen furniture, refrigerator.

Additional Information

Similar offers