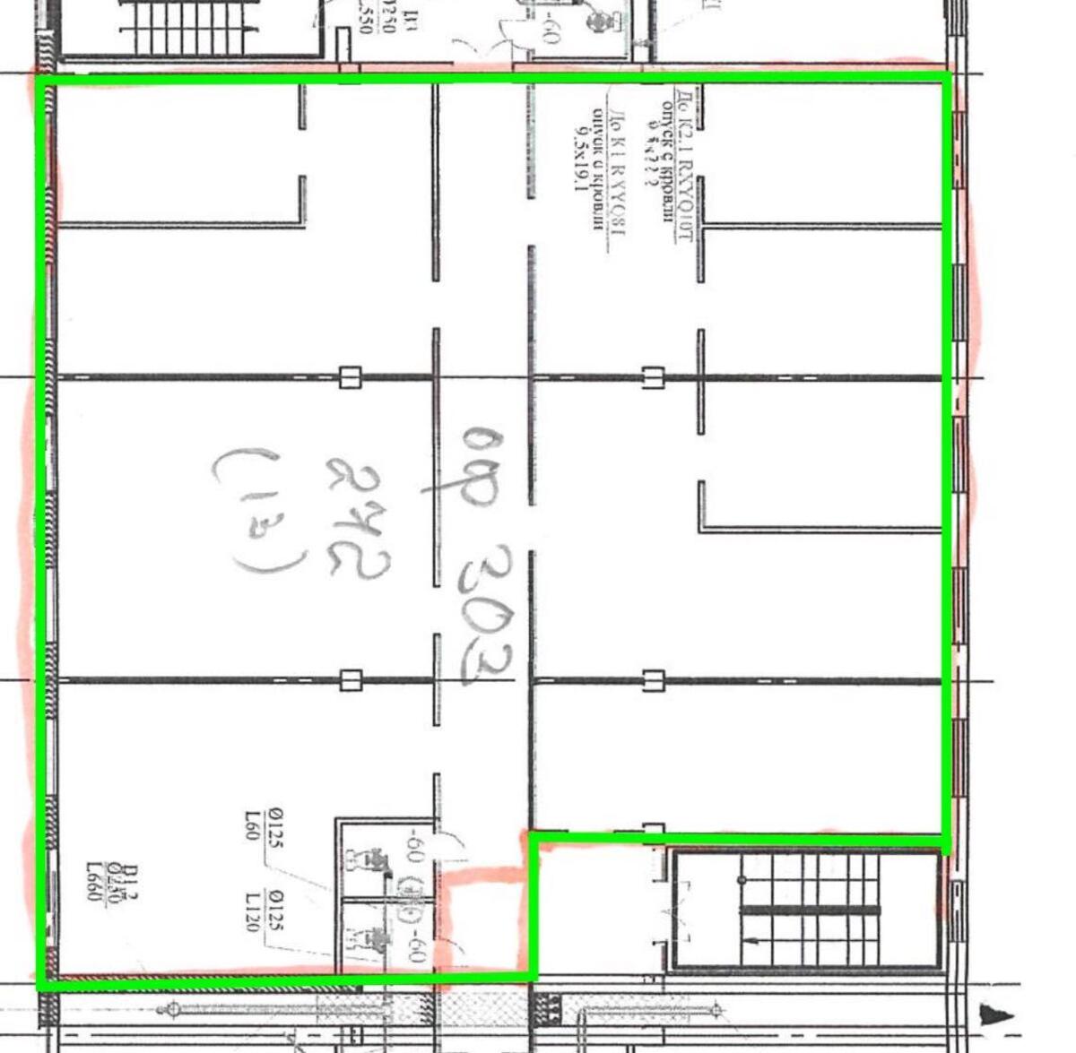
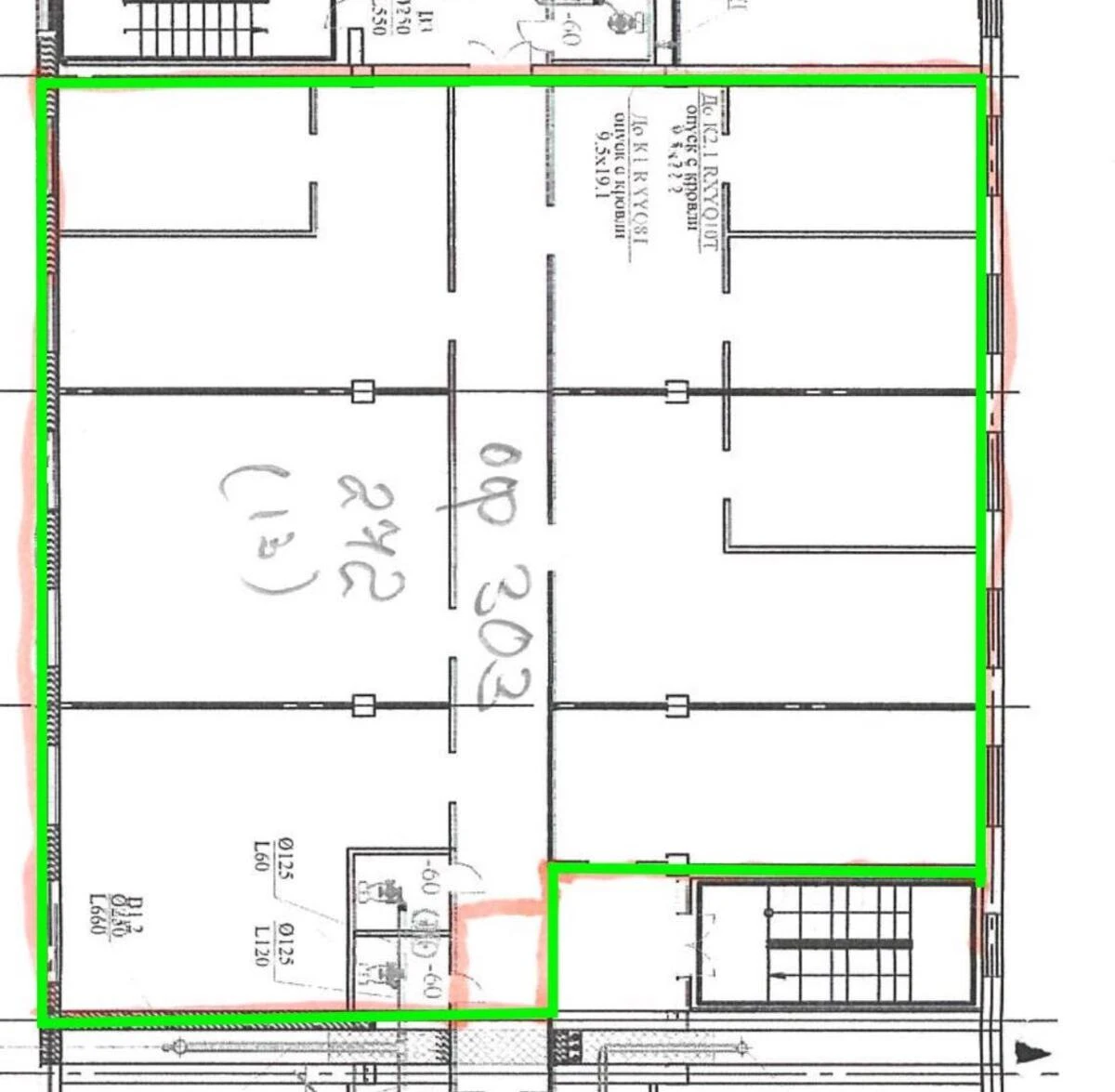
Офис пр-т Отрадный 95А, 272м2

  • Соломенский район пр-т Отрадный 95А
  • Код: RC-220-217
  • Добавлено: 25.02.2026
  • Добавить в избранное
Тип рынка
Вторичный рынок
Улица
пр-т Отрадный 95А
Призначення
Офисное помещение
Этаж
3 Этаж
Этажность
4 этажный дом
Общая площадь
272 м2
Общее состояние
С ремонтом
Цена:
51 680 грн.
1 193 USD
Описание объекта

Офисное помещение. Состояние помещения: готово к использованию. Назначение: офис, склад, производство. Возможность перепланировки помещения под нужды арендатора. Территория под круглосуточной охраной. В стоимость включено: охрана и вывоз мусора. Скоростной интернет. Бесплатная парковка для арендаторов. Система вентиляции и кондиционеры обеспечивают комфортную работу. Генератор гарантирует бесперебойную работу даже в случае отключения электроэнергии.

Похожие предложения