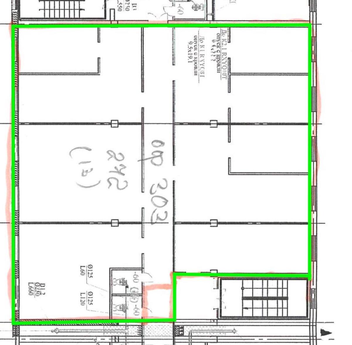
Офіс пр-т Відрадний 95А, 272м2

  • Солом'янський район пр-т Відрадний 95А
  • Код: RC-220-217
  • Добавлено: 25.02.2026
  • Додати в обране
Тип ринку
Вторинний ринок
Вулиця
пр-т Відрадний 95А
Назначение
Офісне приміщення
Поверх
3 Поверх
Поверховість
4 поверховий будинок
Загальна площа
272 м2
Загальний стан
З ремонтом
Ціна:
51 680 грн.
1 193 USD
Опис об'єкту

Офісне приміщення. Стан приміщення: готове до використання. Призначення: офіс, склад, виробництво. Можливість перепланування приміщення під потреби орендаря. Територія під цілодобовою охороною. У вартість включено: охорона та вивіз сміття. Швидкісний інтернет. Безкоштовне паркування для орендарів. Система вентиляції та кондиціонери забезпечують комфортну роботу. Генератор гарантує безперебійну роботу навіть у разі відключення електроенергії.

Схожі пропозиції