Офис пр-т Оболонский 26, 119м2

  • Оболонский район пр-т Оболонский 26
  • Код: RC-218-587
  • Добавлено: 30.11.2025
  • Добавить в избранное
Тип рынка
Вторичный рынок
Улица
пр-т Оболонский 26
Призначення
Офисное помещение
Этаж
2 Этаж
Этажность
26 этажный дом
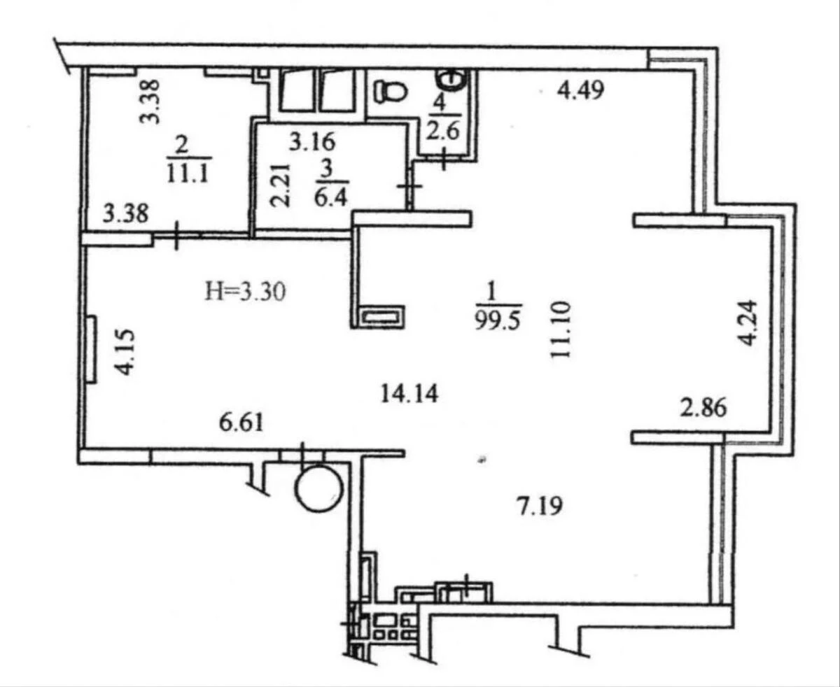
Общая площадь
119 м2
Общее состояние
С ремонтом
Цена:
160 667 грн.
3 800 USD
  • AXIS Real Estate
  • AXIS Real Estate
  • AXIS Real Estate
Описание объекта

ЖК 'Obolon Residences & quot;, офисное помещение. Просторная входная группа, open space с 4 зонированными рабочими местами, переговорная, кухня, санузел. Система кондиционирования. Охранная сигнализация. Предлагается с мебелью (соответствует фото). Возможность зонирования пространства и обустройства дополнительных рабочих мест.

Дополнительная информация

Похожие предложения