Office pr-t Obolons'kyj 26, 119m2

  • Obolonskyi District pr-t Obolons'kyj 26
  • Code: RC-218-587
  • Added by: 30.11.2025
  • Add to favorites
Market type
Secondary market
Street
pr-t Obolons'kyj 26
Purpose
Office Premise
Floor
2 Floor
Number of storeys
26 storey house
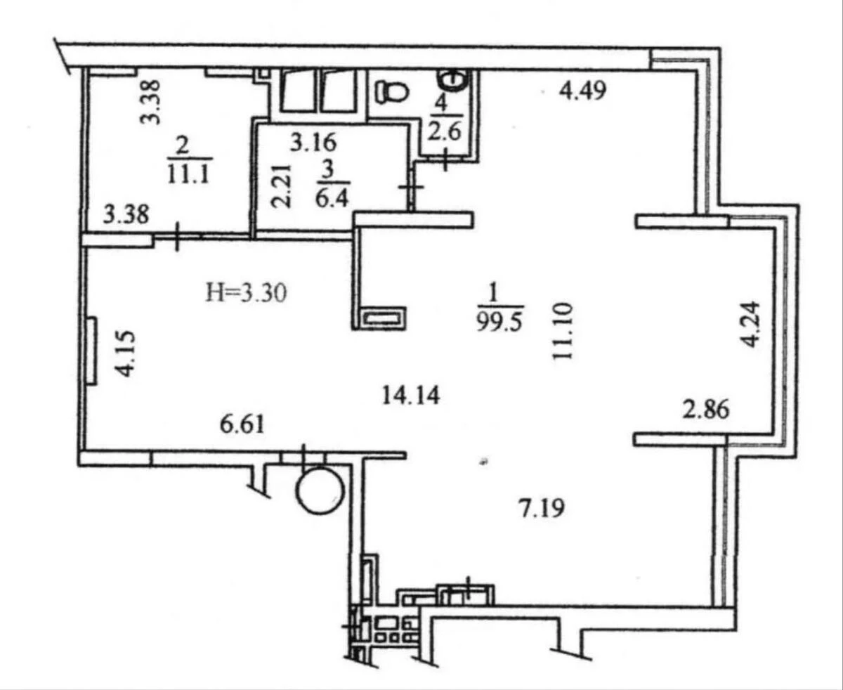
Total area
119 м2
General state
With repair
Price:
160 667 UAH
3 800 USD
  • AXIS Real Estate
  • AXIS Real Estate
  • AXIS Real Estate
Description of the object

Obolon Residences residential complex, office space. Spacious entrance group, open space with 4 zoned workplaces, meeting room, kitchen, bathroom. Air conditioning system. Security alarm system. Offered with furniture (corresponds to the photo). Possibility of zoning the space and arranging additional workplaces.

Additional Information

Similar offers