Офис пр-т Мира 15А, 76м2

  • Днепровский район пр-т Мира 15А
  • Код: RC-223-569
  • Добавлено: 26.05.2026
  • Добавить в избранное
Тип рынка
Вторичный рынок
Улица
пр-т Мира 15А
Призначення
Офисное помещение
Этаж
2 Этаж
Этажность
4 этажный дом
Общая площадь
76 м2
Общее состояние
С ремонтом
Цена:
39 000 грн.
881 USD
Описание объекта

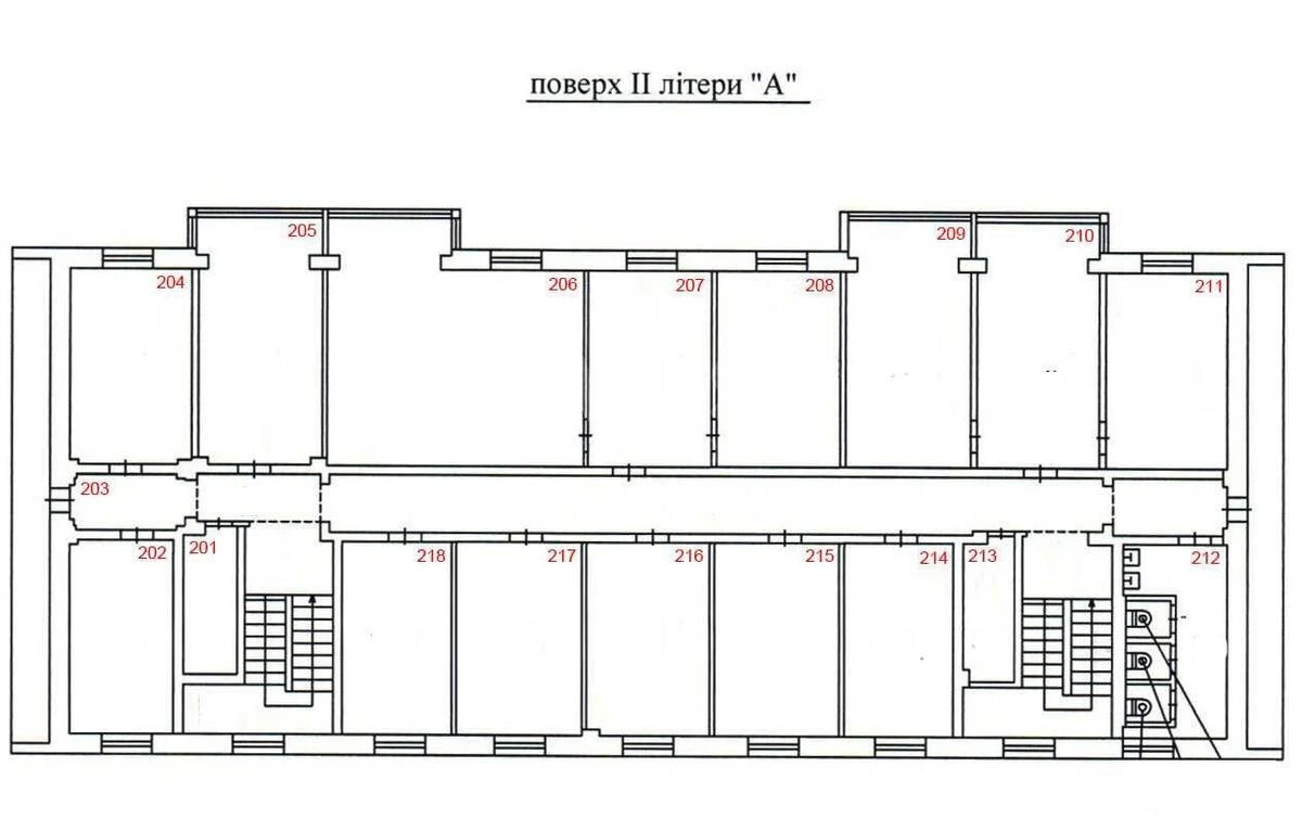
Офисное помещение. Характеристики: 2-й этаж, кабинеты № 206, 207, 208, площадь — 76 м², подходит для работы 8–16 человек. Электроэнергия и генератор — по показаниям счетчика. Бизнес-центр оснащен генератором — стабильное электроснабжение и отопление даже во время отключений.

Похожие предложения