Office pr-t Myru 15А, 76m2

  • Dniprovskyi District pr-t Myru 15А
  • Code: RC-223-569
  • Added by: 26.05.2026
  • Add to favorites
Market type
Secondary market
Street
pr-t Myru 15А
Purpose
Office Premise
Floor
2 Floor
Number of storeys
4 storey house
Total area
76 м2
General state
With repair
Price:
39 000 UAH
881 USD
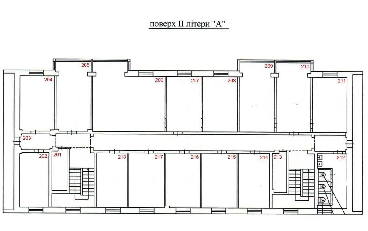
Description of the object

Office space. Features: 2nd floor, offices 206, 207 and 208, floor area 76 m², suitable for 8–16 people. Electricity and generator – metered. The business centre is equipped with a generator, ensuring a stable power supply and heating even during power cuts.

Similar offers