Офис пр-т Берестейский 42, 220м2

  • Шевченковский район пр-т Берестейский 42
  • Код: SC-219-474
  • Добавлено: 25.02.2026
  • Добавить в избранное
Тип рынка
Вторичный рынок
Улица
пр-т Берестейский 42
Призначення
Офисное помещение
Этаж
22 Этаж
Этажность
23 этажный дом
Общая площадь
220 м2
Общее состояние
С ремонтом
Цена:
45 475 270 грн.
1 050 000 USD
Описание объекта

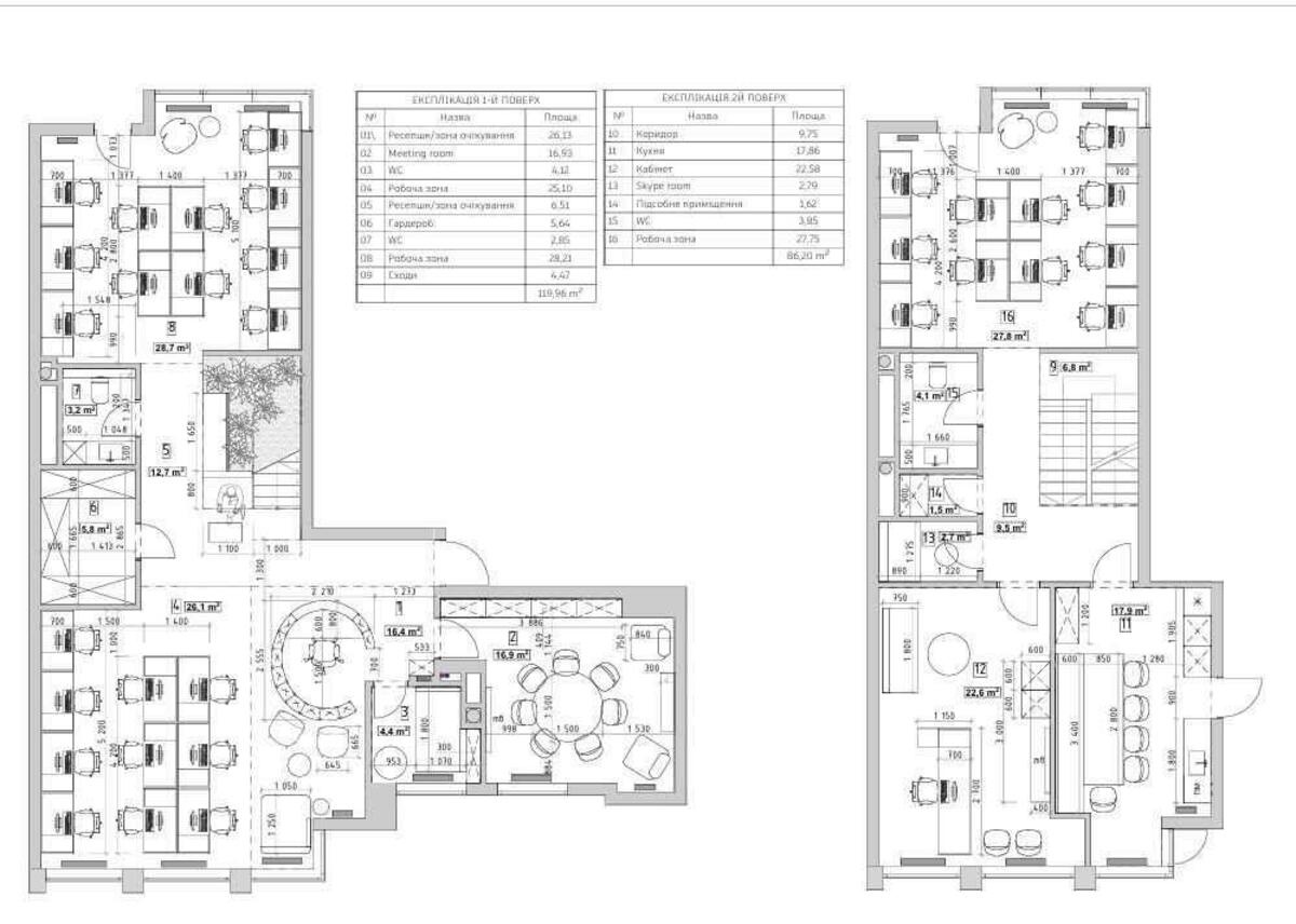
ЖК Кристал Парк Тауэр, офисное помещение. Состоит двух из трех рабочих зала, кабинета руководителя, переговорной, кухни, двух сан.узлов, гардеробной комнат, скайп комнаты, имеет террасу с видом на город. Количество рабочих мест 33 + переговорная комната на 8 мест Состояние помещения - идеальное, полностью новый ремонт, мебель, техника Офис полностью укомплектован современной качественной мебелью. На кухне вся необходимая для офиса техника: холодильник, плита, микроволновая печь, чайник. Бойлер. Система кондиционирования.

Похожие предложения