Office pr-t Berestejskij 42, 220m2

  • Shevchenkivskyi District pr-t Berestejskij 42
  • Code: SC-219-474
  • Added by: 25.02.2026
  • Add to favorites
Market type
Secondary market
Street
pr-t Berestejskij 42
Purpose
Office Premise
Floor
22 Floor
Number of storeys
23 storey house
Total area
220 м2
General state
With repair
Price:
45 475 270 UAH
1 050 000 USD
Description of the object

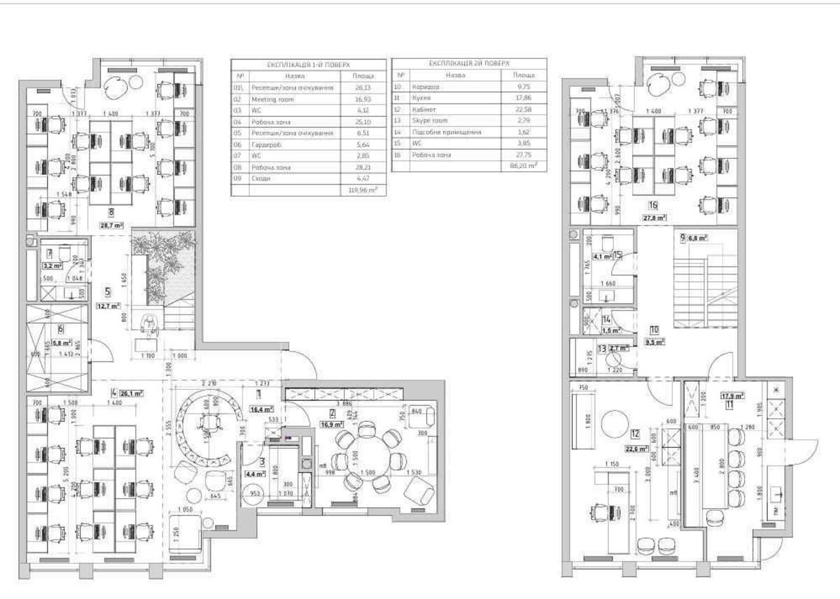
Crystal Park Tower residential complex, office space. It consists of two of three workrooms, a manager's office, a meeting room, a kitchen, two bathrooms, a dressing room, a Skype room, and a terrace overlooking the city. Number of workplaces 33 + meeting room for 8 seats The condition of the premises is perfect, completely newly renovated, furniture, appliances The office is fully equipped with modern quality furniture. The kitchen has all the necessary equipment for the office: refrigerator, stove, microwave, kettle. There is a boiler. Air conditioning system.

Similar offers