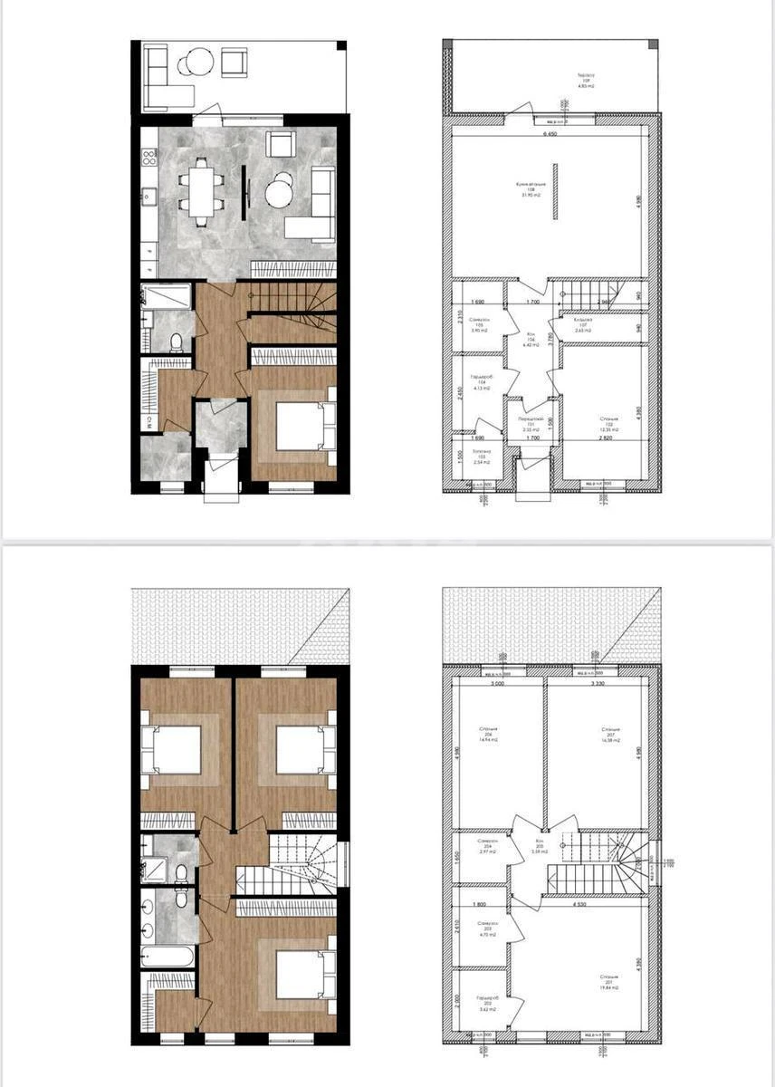
Дoм ул. Садовая 54-я, 150м2, город Киев

  • Київ ул. Садовая 54-я 1
  • Код: SH-223-277
  • Добавлено: 29.04.2026
  • Добавить в избранное
Тип рынка
Вторичный рынок
Вид
Однокомнатная
Улица
ул. Садовая 54-я 1
Соток
3
Количество комнат
4
Этажность
2 этажный дом
Общее состояние
Без ремонта
Цена:
6 162 329 грн.
139 800 USD
Описание объекта

4-комнатная квартира. Просторный участок с местом для барбекю, беседки или детской площадки. Панорамные окна — максимум света в каждой комнате. Озеро и зеленая зона по соседству — идеально для прогулок и отдыха. Экологически чистая зона с малоэтажной застройкой. Асфальтированный подъезд, удобная транспортная доступность. Развитая инфраструктура: автобусная остановка, магазины, школа, детский сад — все рядом. 10 минут пешком до метро «Славутич».

Похожие предложения