House vul. Sadova 54-a, 150m2, Kyiv city

  • Київ vul. Sadova 54-a 1
  • Code: SH-223-277
  • Added by: 29.04.2026
  • Add to favorites
Market type
Secondary market
View
Single Room
Street
vul. Sadova 54-a 1
Are
3
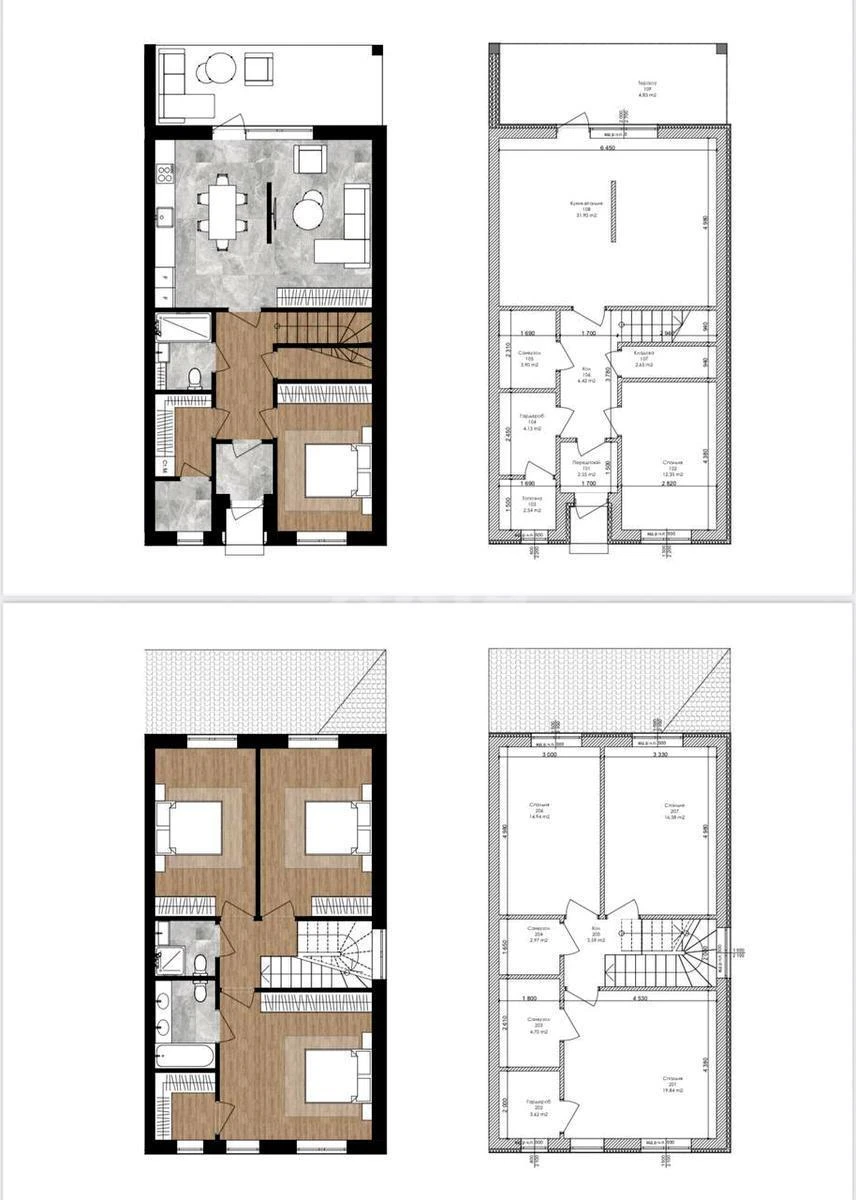
Number of rooms
4
Number of storeys
2 storey house
General state
Without repair
Price:
6 162 329 UAH
139 800 USD
Description of the object

A 4-bedroom flat. A spacious plot with space for a barbecue, a gazebo or a children’s play area. Panoramic windows — plenty of light in every room. A lake and green space nearby — ideal for walks and relaxation. An eco-friendly area with low-rise buildings. Paved access road, convenient transport links. Well-developed infrastructure: bus stop, shops, school, nursery — all nearby. A 10-minute walk to Slavutych metro station.

Similar offers