Дoм ул. Лесная, 180м2, город Киев

  • Київ ул. Лесная 12
  • Код: SH-216-159
  • Добавлено: 29.05.2026
  • Добавить в избранное
Тип рынка
Вторичный рынок
Вид
Однокомнатная
Улица
ул. Лесная 12
Соток
6
Количество комнат
3
Этажность
2 этажный дом
Общее состояние
Без ремонта
Цена:
8 414 999 грн.
190 000 USD
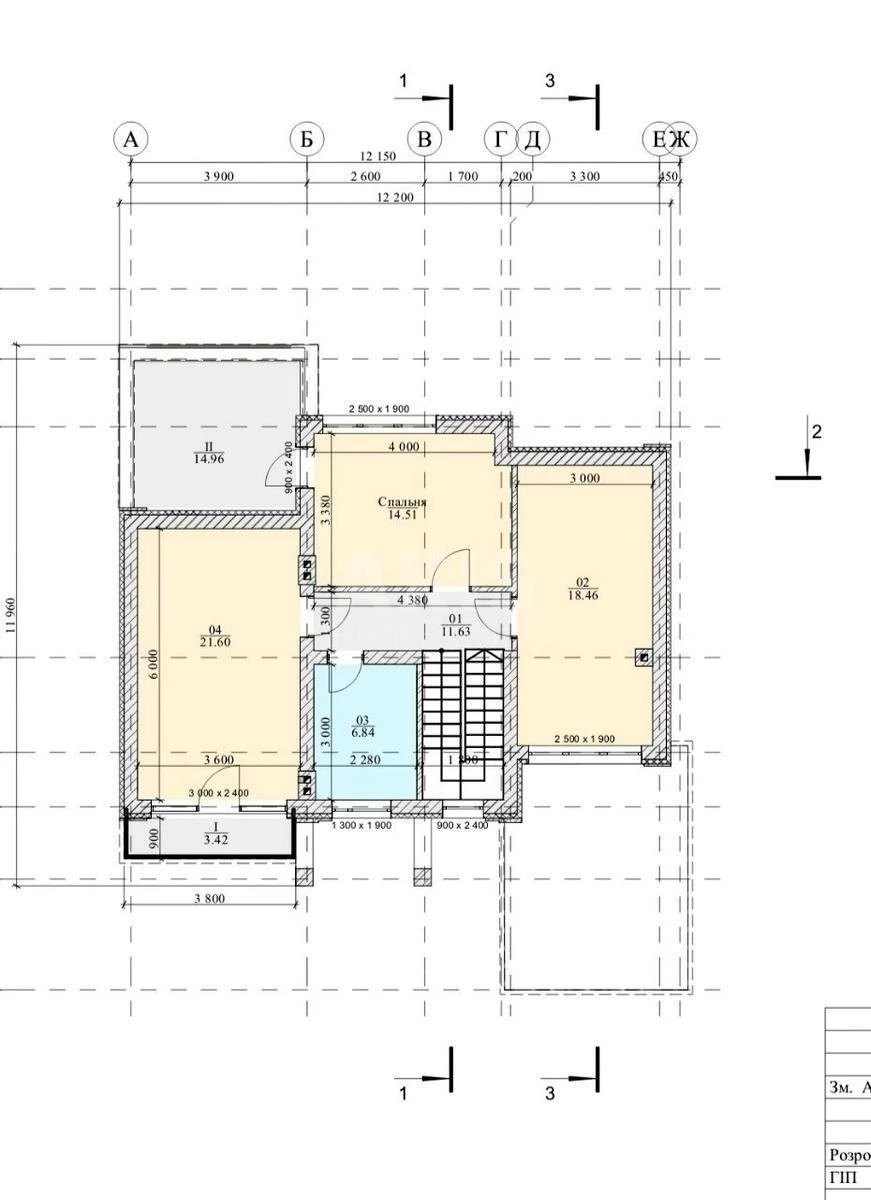
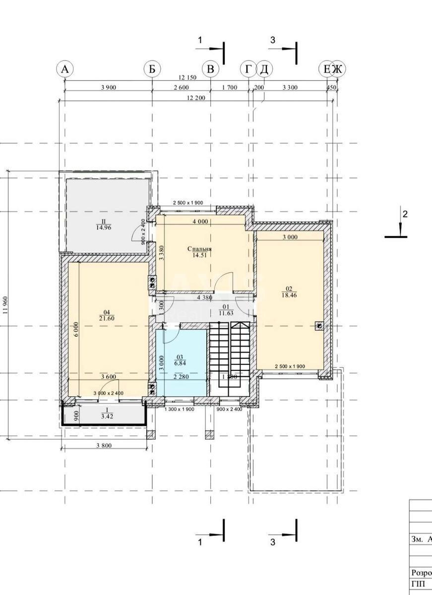
Описание объекта

3 комнатный дом. Дом 2021 года постройки частично из кирпича и пеноблока расположен прямо в лесу на первой линии в закрытом коттеджном городке от метро Бориспольская 2,5 км. На участке большие сосны, рядом хорошие соседи. Стильный, качественный и функциональный экстерьер и дизайн дома.

Похожие предложения

Сопутствующие теги