Дoм ул. Центральная, 258м2, город Киев

  • Київ ул. Центральная 21
  • Код: SH-211-188
  • Добавлено: 20.08.2025
  • Добавить в избранное
Тип рынка
Вторичный рынок
Вид
Однокомнатная
Улица
ул. Центральная 21
Соток
12
Количество комнат
4
Этажность
2 этажный дом
Общее состояние
Без ремонта
Цена:
17 431 610 грн.
415 000 USD
  • AXIS Real Estate
  • AXIS Real Estate
  • AXIS Real Estate
Описание объекта

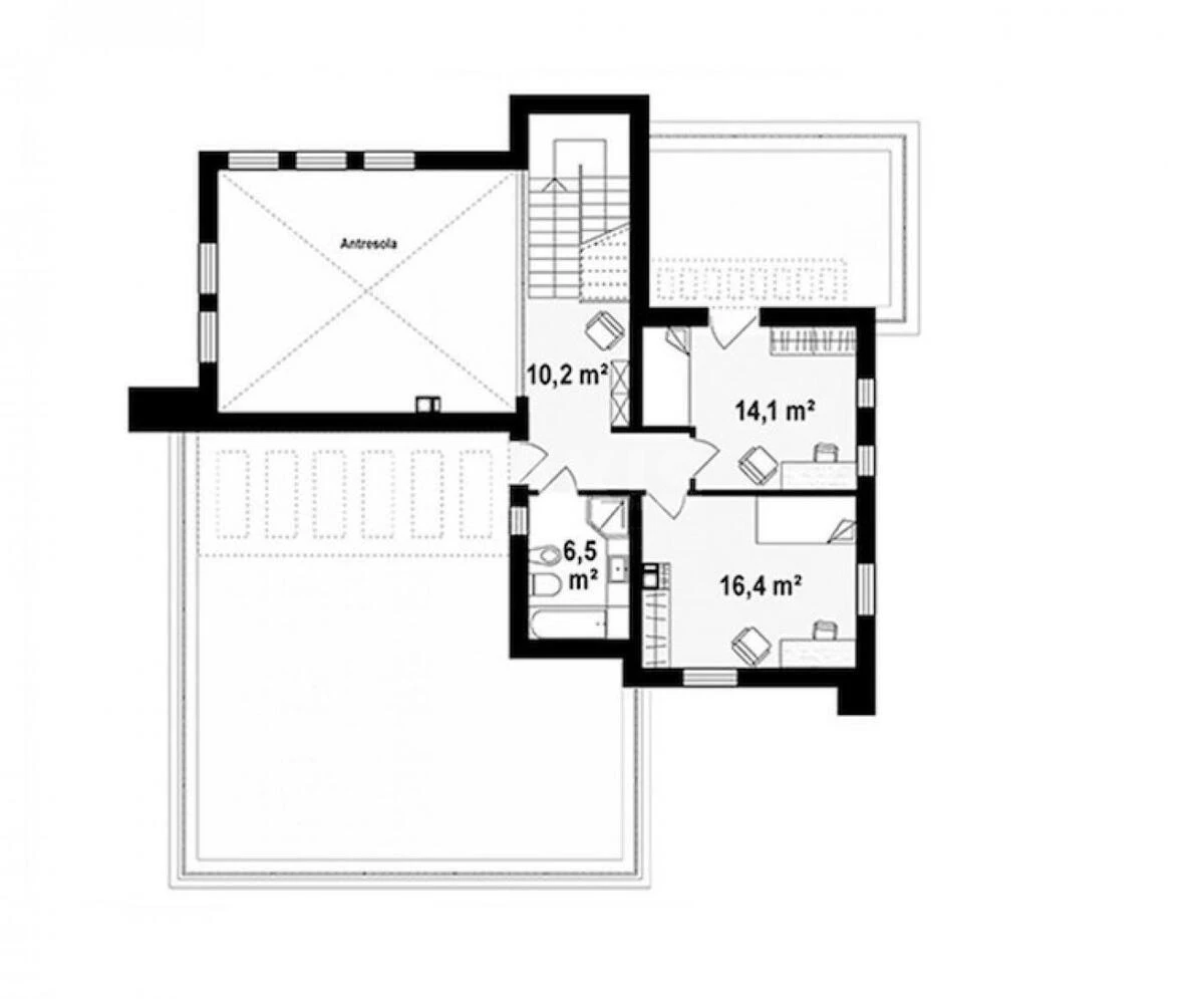
4 комнатный дом. 1 этаж: кухня-гостиная с выходом на террасу, комната, спальня с собственным гардеробом и санузлом, санузел, техническое помещение и гараж. 2 этаж: 2 спальни и санузел. Дом построен из керамоблока и утеплен минеральной ватой. Заведены необходимые коммуникации: вода (скважина 60 м), канализация (септик 16 кубов) и электроэнергия (15 кВт). Возможно повести ГАЗ.

Дополнительная информация

Похожие предложения

Сопутствующие теги