House vul. Central'na, 258m2, Kyiv city

  • Київ vul. Central'na 21
  • Code: SH-211-188
  • Added by: 20.08.2025
  • Add to favorites
Market type
Secondary market
View
Single Room
Street
vul. Central'na 21
Are
12
Number of rooms
4
Number of storeys
2 storey house
General state
Without repair
Price:
17 431 610 UAH
415 000 USD
  • AXIS Real Estate
  • AXIS Real Estate
  • AXIS Real Estate
Description of the object

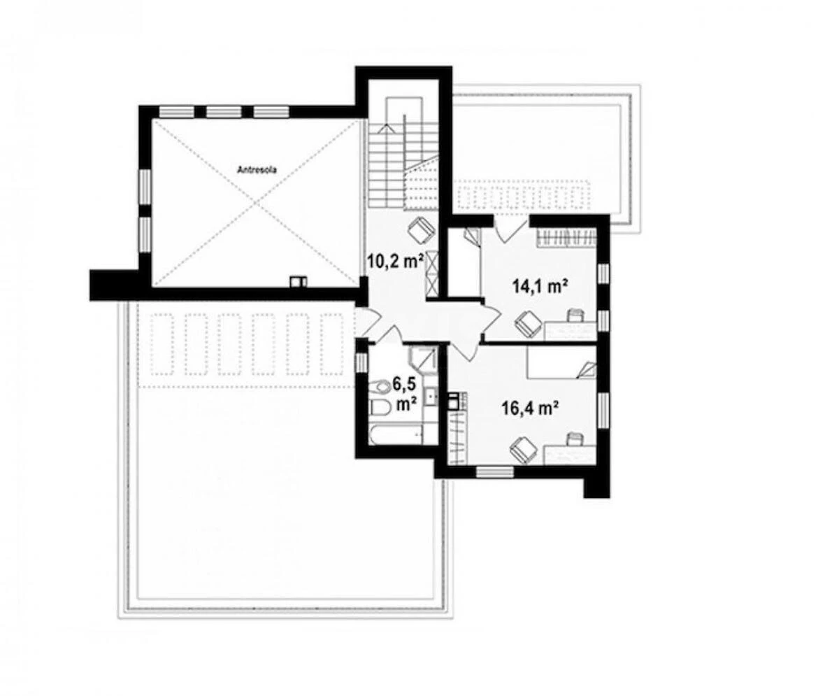
4-room house. 1st floor: kitchen-living room with access to the terrace, a room, a bedroom with its own wardrobe and a bathroom, a bathroom, a technical room and a garage. 2nd floor: 2 bedrooms and a bathroom. The house is built of ceramic block and insulated with mineral wool. There are necessary communications: water (well 60 m), sewerage (septic tank 16 cubic meters) and electricity (15 kW). It is possible to bring gas.

Additional Information

Similar offers