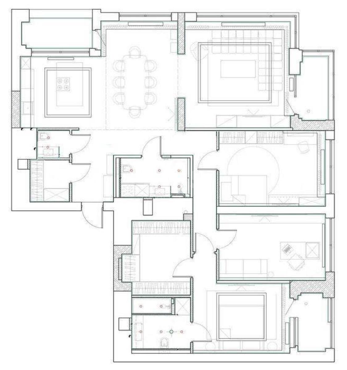
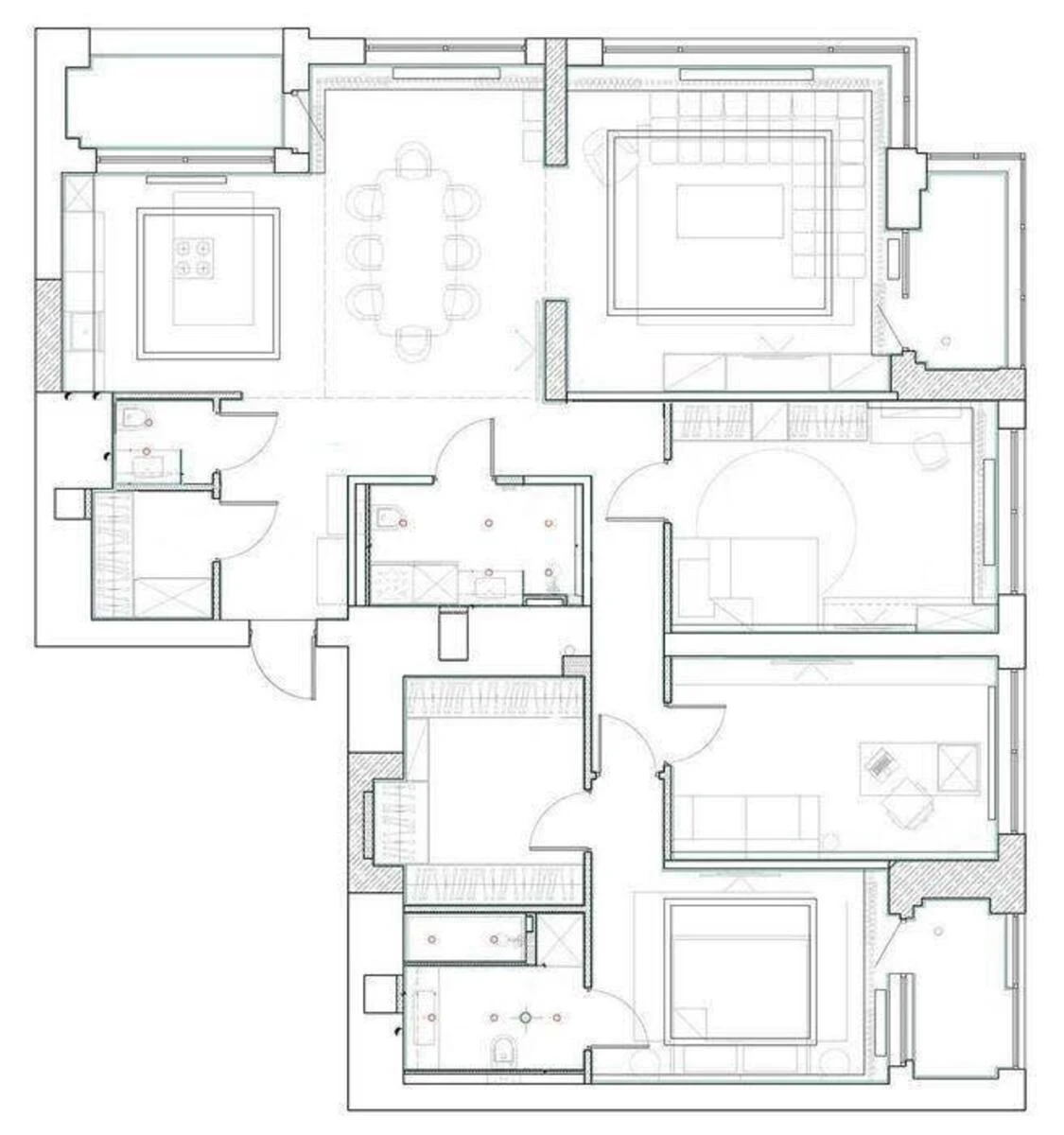
5к квартира ул. Федорова Ивана 2А

  • Печерский район ул. Федорова Ивана 2А
  • Код: SF-3-236-196
  • Добавлено: 05.11.2025
  • Добавить в избранное
Тип рынка
Первичный рынок
Улица
ул. Федорова Ивана 2А
Количество комнат
5
Этаж
22 Этаж
Этажность
25 этажный дом
Общая площадь
202 м2
Общее состояние
Без ремонта
Цена:
50 736 770 грн.
1 200 000 USD
  • AXIS Real Estate
  • AXIS Real Estate
  • AXIS Real Estate
Описание объекта

ЖК Tetris Hall, 5 комнатная квартира. Расположена на высоком 22-м этаже 25-этажного дома, что гарантирует впечатляющие панорамные виды на центр Киева. Высота потолков - 3 метра, большие окна обеспечивают максимальное количество дневного света и ощущение простора. Планировка специального проекта позволяет создать интерьер, который будет полностью соответствовать вашим представлениям об идеальном пространстве для жизни.

Дополнительная информация

Похожие предложения