5к квартира вул. Федорова Івана 2А

  • Печерський район вул. Федорова Івана 2А
  • Код: SF-3-236-196
  • Добавлено: 05.11.2025
  • Додати в обране
Тип ринку
Первинний ринок
Вулиця
вул. Федорова Івана 2А
Кількість кімнат
5
Поверх
22 Поверх
Поверховість
25 поверховий будинок
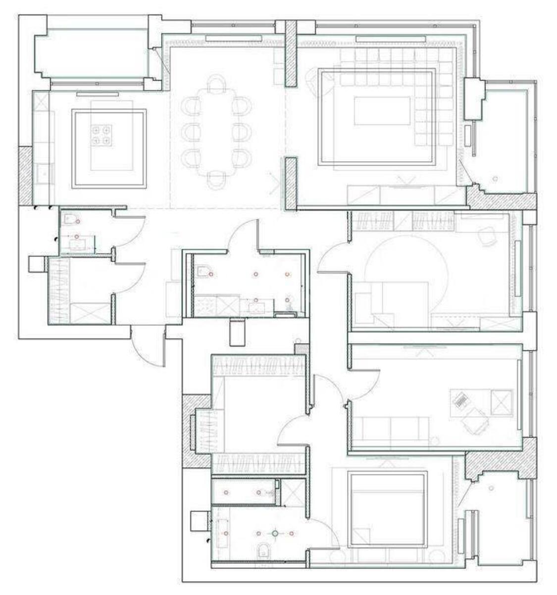
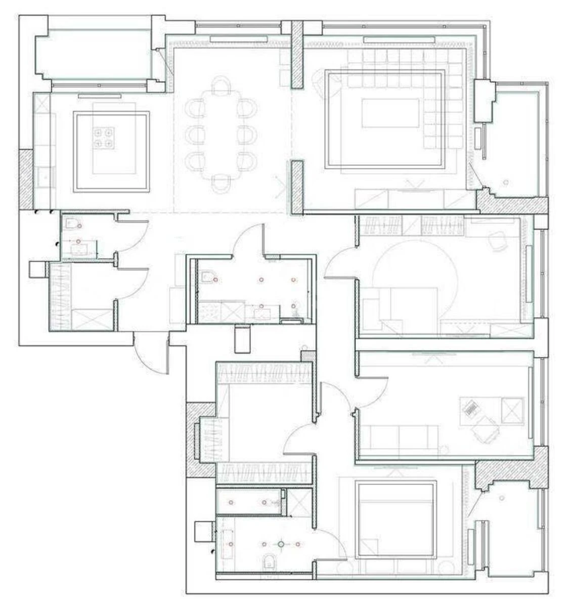
Загальна площа
202 м2
Загальний стан
Без ремонту
Ціна:
50 736 770 грн.
1 200 000 USD
  • AXIS Real Estate
  • AXIS Real Estate
  • AXIS Real Estate
Опис об'єкту

ЖК Tetris Hall, 5 кімнатна квартира. Розташована на високому 22-му поверсі 25-поверхового будинку, що гарантує вражаючі панорамні види на центр Києва. Висота стель — 3 метри, великі вікна забезпечують максимальну кількість денного світла та відчуття простору. Планування спеціального проєкту дозволяє створити інтер’єр, який повністю відповідатиме вашим уявленням про ідеальний простір для життя.

Додаткова інформація

Схожі пропозиції