4к квартира ул. Андрея Верхогляда 18

  • Печерский район ул. Андрея Верхогляда 18
  • Код: SF-3-279-593
  • Добавлено: 18.02.2026
  • Добавить в избранное
Тип рынка
Вторичный рынок
Улица
ул. Андрея Верхогляда 18
Количество комнат
4
Этаж
15 Этаж
Этажность
30 этажный дом
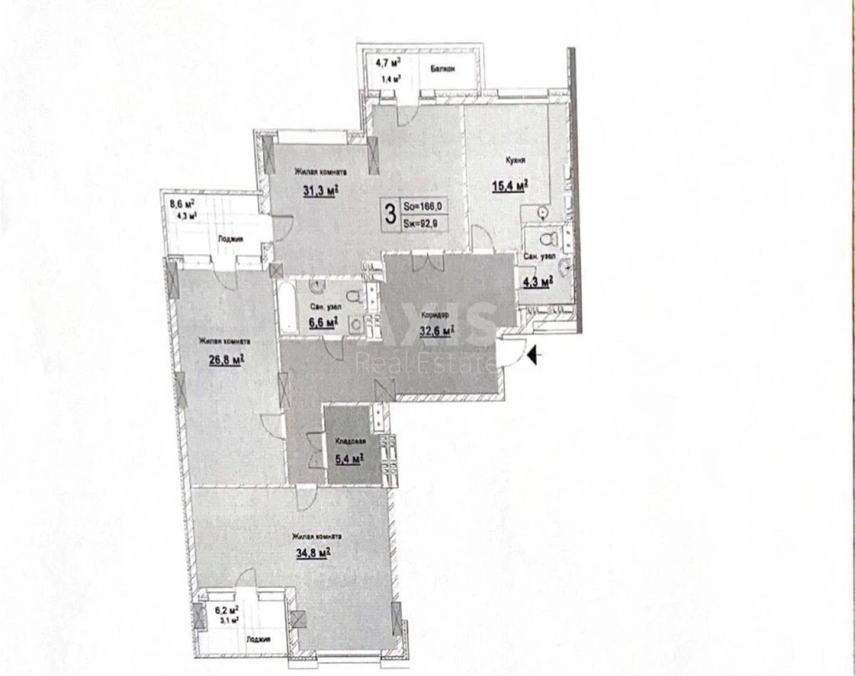
Общая площадь
179 м2
Общее состояние
С ремонтом
Цена:
19 417 153 грн.
450 000 USD
Описание объекта

ЖК Новопечерские Липки, 4 комнатная квартира. Просторная квартира с раздельной планировкой и авторским ремонтом, полностью готова к заселению. Кухня-гостиная выполнена в классическом стиле с мебелью из натурального дерева и современной техникой AEG и большим холодильником Sharp. Установлены встроенные кондиционеры DAIKIN и система теплого пола, есть система обратного осмоса для питьевой воды. Балкон оборудован центральным пылесосом. Жилые комнаты включают три детские комнаты с шкафами, рабочими зонами и диванами, панорамные окна с видом на Родину-Мать, флаг Украины и Киево-Печерскую Лавру. Главная спальня имеет гардеробную и собственный балкон с панорамными окнами. Санвузлы: два санузла, гигиенический душ, биде. Дополнительно: стиральная и сушильная машины Miele, различные сценарии освещения во всех помещениях. Квартира меблирована и оснащена всей необходимой техникой. Дом построен в рамках концепции «Город в городе» с консьерж-сервисом. Подключено видеонаблюдение в доме и на территории, охрана. В доме есть лифты, подземный и гостевой паркинг, пожарная сигнализация. Квартира имеет собственное парковочное место под домом. Закрытая и ухоженная территория с ландшафтным дизайном, газонами, клумбами и зонами отдыха. На территории фонтан, детские площадки (9 штук), мини-поле для футбола. Внутренняя инфраструктура комплекса включает ТЦ, спорткомплекс, детский сад, школу, магазины, кафе, SPA, банки, салоны красоты и медицинские кабинеты. Доступ на территорию контролируется КПП.

Похожие предложения