4k apartment vul. Andriya Verkhohlyada 18

  • Pecherskyi District vul. Andriya Verkhohlyada 18
  • Code: SF-3-279-593
  • Added by: 18.02.2026
  • Add to favorites
Market type
Secondary market
Street
vul. Andriya Verkhohlyada 18
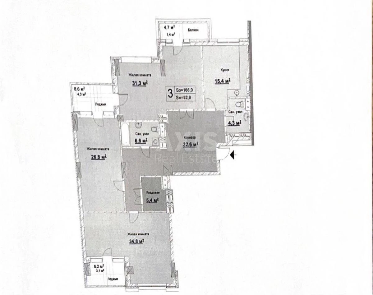
Number of rooms
4
Floor
15 Floor
Number of storeys
30 storey house
Total area
179 м2
General state
With repair
Price:
19 417 153 UAH
450 000 USD
Description of the object

Novopecherski Lypky residential complex, 4-room apartment. Spacious apartment with separate layout and designer renovation, completely ready to move in. The kitchen-living room is designed in a classic style with natural wood furniture and modern AEG appliances and a large Sharp refrigerator. Built-in DAIKIN air conditioners and underfloor heating are installed, and there is a reverse osmosis system for drinking water. The balcony is equipped with a central vacuum cleaner. The living areas include three children's rooms with wardrobes, work areas and sofas, panoramic windows overlooking the Motherland Monument, the Ukrainian flag and the Kyiv-Pechersk Lavra. The master bedroom has a walk-in wardrobe and its own balcony with panoramic windows. Bathrooms: two bathrooms, hygienic shower, bidet. Additionally: Miele washing machine and dryer, various lighting scenarios in all rooms. The apartment is furnished and equipped with all necessary appliances. The building was constructed as part of the "City within a City" concept with concierge service. Video surveillance is connected in the building and on the territory, security. The building has lifts, underground and guest parking, fire alarm. The apartment has its own parking space under the building. Closed and well-kept territory with landscape design, lawns, flower beds and recreation areas. There is a fountain, nine playgrounds, and a mini football field on the grounds. The internal infrastructure of the complex includes a shopping centre, sports complex, kindergarten, school, shops, cafes, spa, banks, beauty salons, and medical offices. Access to the grounds is controlled by a checkpoint.

Similar offers