3к квартира ул. Салютная 2Б

  • Шевченковский район ул. Салютная 2Б
  • Код: SF-3-279-462
  • Добавлено: 18.02.2026
  • Добавить в избранное
Тип рынка
Первичный рынок
Улица
ул. Салютная 2Б
Количество комнат
3
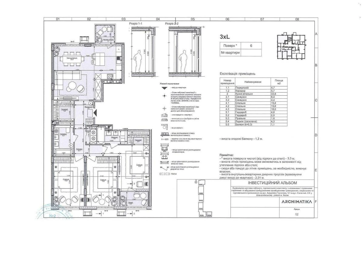
Этаж
6 Этаж
Этажность
9 этажный дом
Общая площадь
117 м2
Общее состояние
Без ремонта
Цена:
12 297 530 грн.
285 000 USD
Описание объекта

ЖК Файна Таун, 3 комнатная квартира. Планировка: кухня-гостиная, 3 отдельные спальни, 2 санузла, гардероб, лоджия. Застройщик ЖК Файна Таун - это известная компания KAN, которая также построила такие ЖК, как Республика, Respublika, Республика, Unit Home, Tetris Hall, Central Park. Жилой комплекс «Файна Таун» в Киеве является одним из крупнейших проектов поквартальной застройки. Новостройка находится на участке площадью 40 га, образованном улицами Эстонская, Салютная, Щербаковского и Туполева.

Похожие предложения