3k apartment vul. Saljutna 2Б

  • Shevchenkivskyi District vul. Saljutna 2Б
  • Code: SF-3-279-462
  • Added by: 18.02.2026
  • Add to favorites
Market type
Primary market
Street
vul. Saljutna 2Б
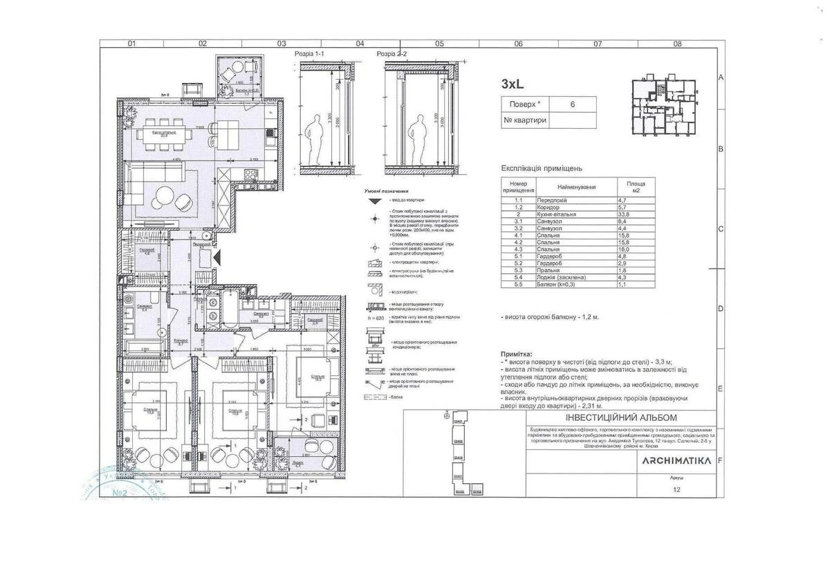
Number of rooms
3
Floor
6 Floor
Number of storeys
9 storey house
Total area
117 м2
General state
Without repair
Price:
12 297 530 UAH
285 000 USD
Description of the object

Faina Town residential complex, 3-room apartment. Layout: kitchen-living room, 3 separate bedrooms, 2 bathrooms, wardrobe, loggia. The developer of the Faina Town residential complex is the well-known company KAN, which also built such residential complexes as Respublika, Respublika, Unit Home, Tetris Hall, and Central Park. The Faina Town residential complex in Kyiv is one of the largest quarterly development projects. The new building is located on a 40-hectare site formed by Estonska, Salyutna, Shcherbakivskoho and Tupoleva streets.

Similar offers