3к квартира ул. Дегтярная 7

  • Подольский район ул. Дегтярная 7
  • Код: SF-3-262-170
  • Добавлено: 26.05.2026
  • Добавить в избранное
Тип рынка
Первичный рынок
Улица
ул. Дегтярная 7
Количество комнат
3
Этаж
7 Этаж
Этажность
8 этажный дом
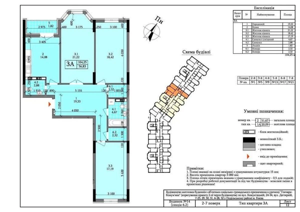
Общая площадь
104 м2
Общее состояние
Без ремонта
Цена:
8 362 604 грн.
189 000 USD
Описание объекта

ЖК Подол Град, 3 комнатная квартира. Раздельная планировка - удобно для семьи или для тех, кто любит пространство. Кухня 14,8м - достаточно места и для приготовления, и для обеденной зоны. Собственная котельная - экономия и независимость. Кирпичная застройка элит-класса - качество и надежность. ЖК Podol Grad - престижное место в сердце Подола, развитая инфраструктура, удобная транспортная доступность.

Похожие предложения