3k apartment vul. Degtjarna 7

  • Podilskyi District vul. Degtjarna 7
  • Code: SF-3-262-170
  • Added by: 26.05.2026
  • Add to favorites
Market type
Primary market
Street
vul. Degtjarna 7
Number of rooms
3
Floor
7 Floor
Number of storeys
8 storey house
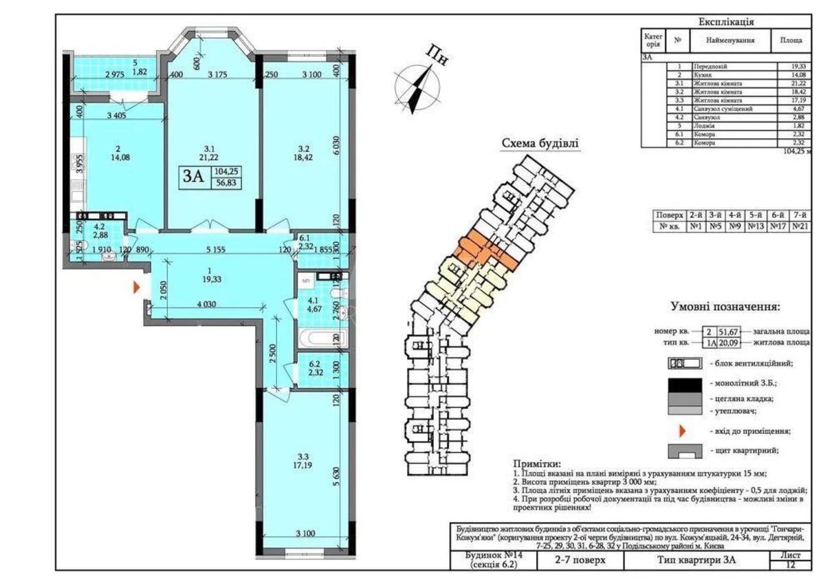
Total area
104 м2
General state
Without repair
Price:
8 362 604 UAH
189 000 USD
Description of the object

Podol Grad residential complex, 3-room apartment. Separate layout - convenient for a family or for those who love space. The kitchen is 14.8m - enough space for both cooking and dining. Own boiler room - savings and independence. Elite-class brick construction - quality and reliability. Podol Grad is a prestigious location in the heart of Podil, with developed infrastructure and convenient transport accessibility.

Similar offers