2к квартира ул. Владимирская 76Б

  • Голосеевский район ул. Владимирская 76Б
  • Код: SF-3-286-946
  • Добавлено: 04.03.2026
  • Добавить в избранное
Тип рынка
Вторичный рынок
Улица
ул. Владимирская 76Б
Количество комнат
2
Этаж
3 Этаж
Этажность
4 этажный дом
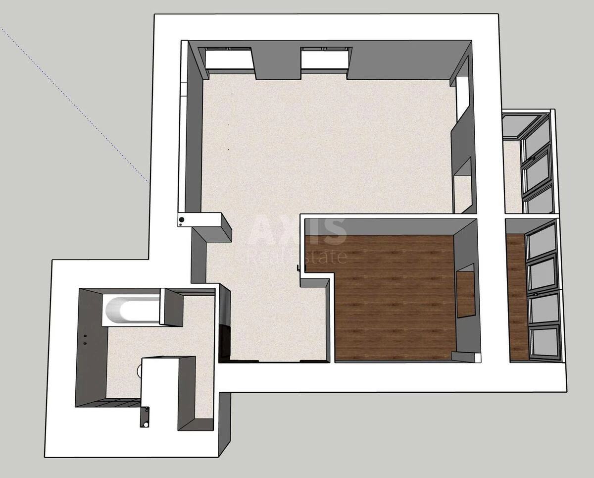
Общая площадь
55 м2
Общее состояние
Без ремонта
Цена:
6 384 302 грн.
147 500 USD
Описание объекта

2-комнатная квартира. Просторная евродвушка с перепланировкой с нуля: большая кухня-гостиная, уютная спальня с панорамным видом, стильный санузел с кладовой и отдельный кабинет-лоджия с теплым полом. Квартира под чистовую отделку, без мебели и бытовой техники, с панорамными окнами, балконом и лоджией. Установлен подогрев пола, современные инженерные коммуникации, контуры отопления и сантехники с датчиками протечки, новая электрика, бронированная дверь и оптоволоконный интернет, который работает даже при отключениях света. Ванная комната оборудована ванной, унитазом, шкафом для стиральной и сушильной машин, крючками скрытого монтажа и отдельной кладовой. Царский дом с толстыми стенами (80 см), что обеспечивает отличную тепло- и шумоизоляцию. Пол и перекрытия усилены, надежные перегородки, современные системы безопасности. В доме есть хозяйственное помещение и кладовая. Закрытый двор с гостевым паркингом и собственным бомбоубежищем. Район с развитой инфраструктурой — рядом магазины, кафе, транспортные остановки и парки, что обеспечивает комфортную жизнь в центре города.

Похожие предложения