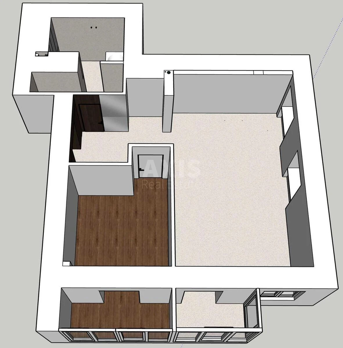
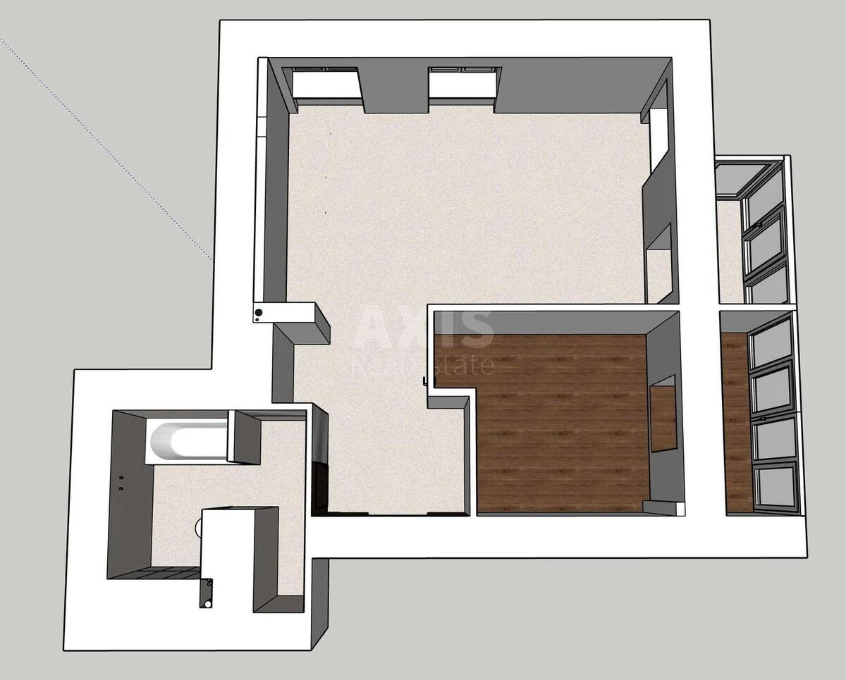
2к квартира вул. Володимирська 76Б

  • Голосіївський район вул. Володимирська 76Б
  • Код: SF-3-286-946
  • Добавлено: 04.03.2026
  • Додати в обране
Тип ринку
Вторинний ринок
Вулиця
вул. Володимирська 76Б
Кількість кімнат
2
Поверх
3 Поверх
Поверховість
4 поверховий будинок
Загальна площа
55 м2
Загальний стан
Без ремонту
Ціна:
6 384 302 грн.
147 500 USD
Опис об'єкту

2 кімнатна квартира. Простора євродвушка з переплануванням з нуля: велика кухня-вітальня, затишна спальня з панорамним видом, стильний санвузол із кладовкою та відокремлений кабінет-лоджія з теплою підлогою. Квартира під чистову обробку, без меблів та побутової техніки, з панорамними вікнами, балконом і лоджією. Встановлено підігрів підлоги, сучасні інженерні комунікації, контури опалення та сантехніки з датчиками протікання, нову електрику, броньовані двері та оптоволоконний інтернет, який працює навіть при відключеннях світла. Ванна кімната обладнана ванною, унітазом, шафою для пральної та сушильної машин, гачками прихованого монтажу та окремою кладовкою. Царський будинок із товстими стінами (80 см), що забезпечує відмінну тепло- та шумоізоляцію. Підлога та перекриття посилені, надійні перегородки, сучасні системи безпеки. У будинку є господарське приміщення та комора. Закритий двір із гостьовим паркінгом та власним бомбосховищем. Район із розвиненою інфраструктурою — поруч магазини, кафе, транспортні зупинки та парки, що забезпечує комфортне життя в центрі міста.

Схожі пропозиції