2к квартира ул. Виктора Некрасова 1

  • Шевченковский район ул. Виктора Некрасова 1
  • Код: SF-3-249-751
  • Добавлено: 03.12.2025
  • Добавить в избранное
Тип рынка
Первичный рынок
Улица
ул. Виктора Некрасова 1
Количество комнат
2
Этаж
9 Этаж
Этажность
26 этажный дом
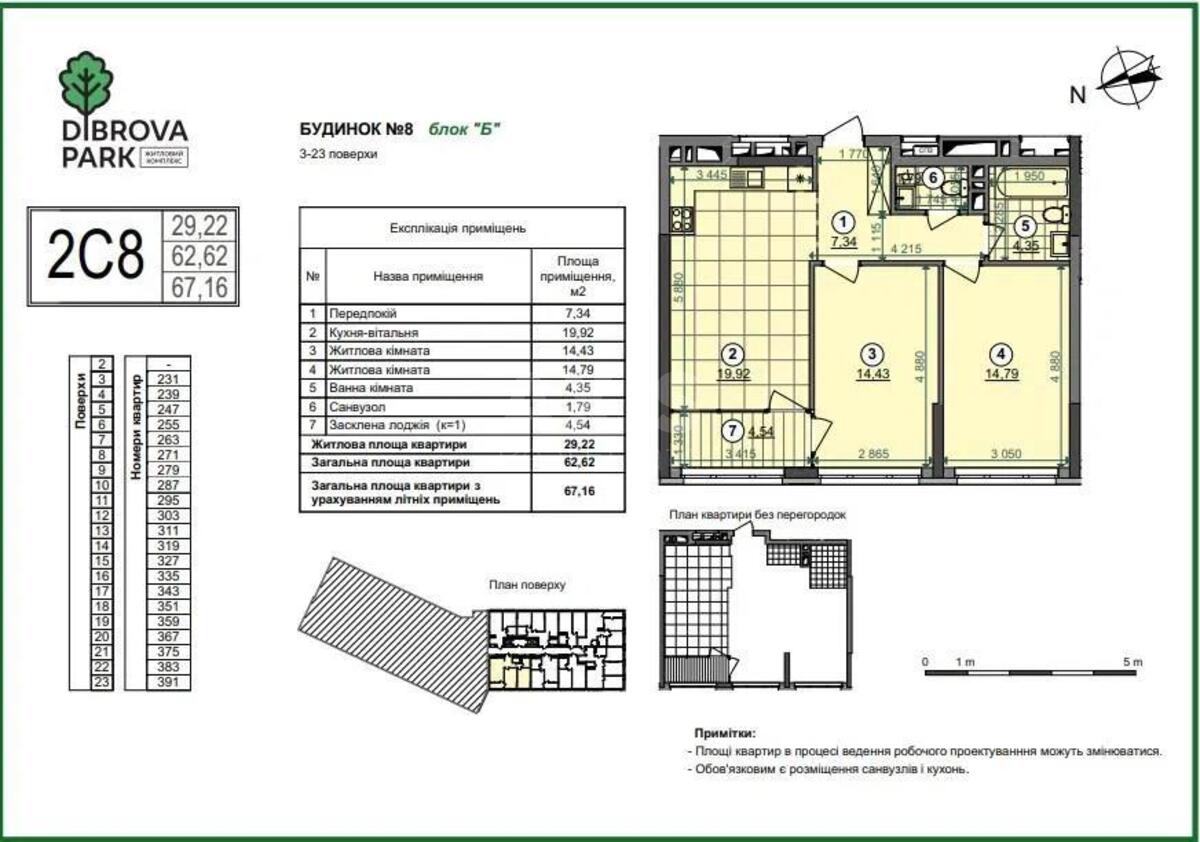
Общая площадь
67 м2
Общее состояние
Без ремонта
Цена:
3 642 976 грн.
86 000 USD
Описание объекта

ЖК Dibrova Park, 2 комнатная квартира. Состояние после строителей. На полу лазерная стяжка, проведено электричество, пожарная сигнализация, счетчики на холодную, горячую воду, электроэнергию, входные металлические, противопожарные двери, металлопластиковые окна Rehau с двухкамерным стеклопакетом. Дом 8 ввод в эксплуатацию 3 квартал 2026г. Фасадные работы дома уже завершены.

Похожие предложения