2k apartment vul. Viktora Nekrasova 1

  • Shevchenkivskyi District vul. Viktora Nekrasova 1
  • Code: SF-3-249-751
  • Added by: 03.12.2025
  • Add to favorites
Market type
Primary market
Street
vul. Viktora Nekrasova 1
Number of rooms
2
Floor
9 Floor
Number of storeys
26 storey house
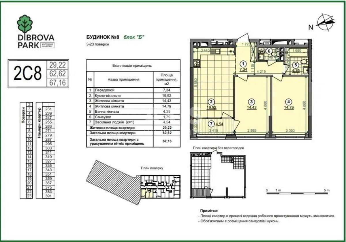
Total area
67 м2
General state
Without repair
Price:
3 642 976 UAH
86 000 USD
Description of the object

RC Dibrova Park, 2 bedroom apartment. Condition after the builders. Laser screed on the floor, electricity, fire alarm, meters for cold, hot water, electricity, metal entrance, fire doors, Rehau plastic windows with double-glazed windows. House 8 is to be commissioned in the 3rd quarter of 2026. The facade works of the house have already been completed.

Similar offers