2к квартира ул. Причальная 14

  • Дарницкий район ул. Причальная 14
  • Код: SF-3-243-661
  • Добавлено: 20.11.2025
  • Добавить в избранное
Тип рынка
Первичный рынок
Улица
ул. Причальная 14
Количество комнат
2
Этаж
2 Этаж
Этажность
26 этажный дом
Общая площадь
83 м2
Общее состояние
Без ремонта
Цена:
4 418 274 грн.
105 000 USD
  • AXIS Real Estate
  • AXIS Real Estate
  • AXIS Real Estate
Описание объекта

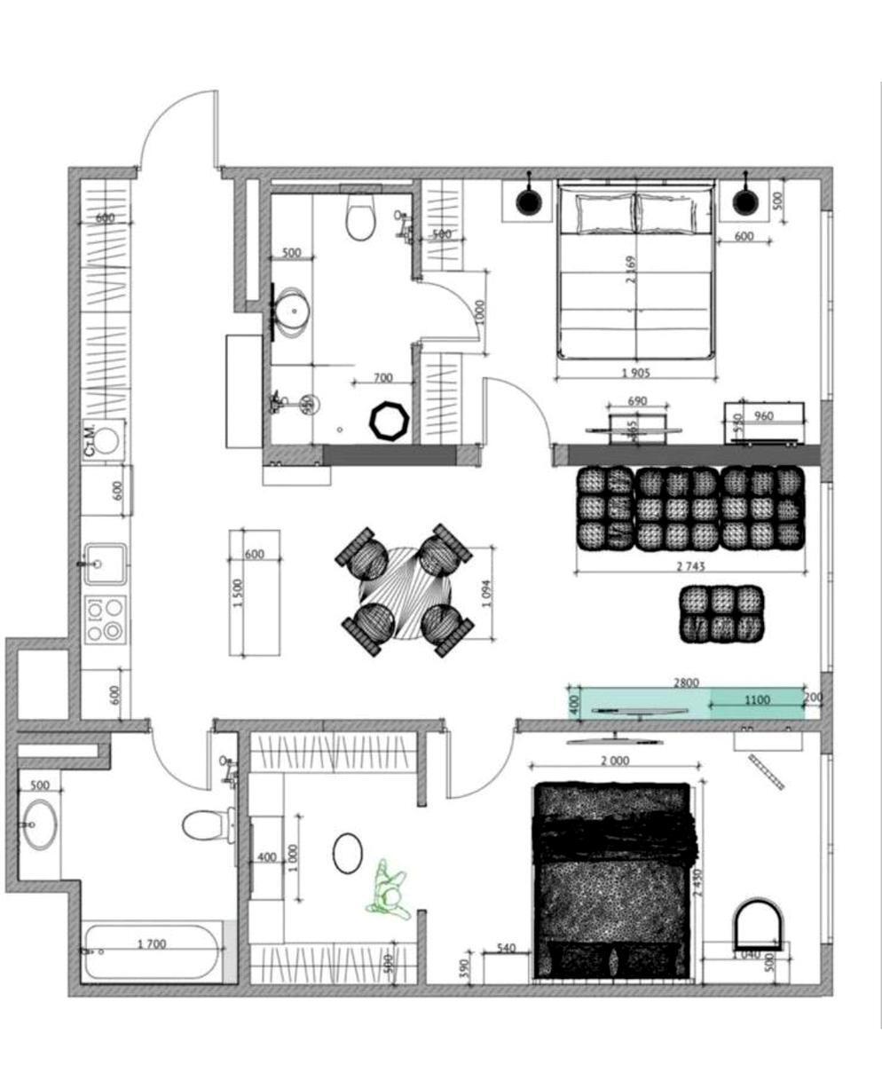
ЖК Great, 2 комнатная квартира. Дом 2, этаж 2/25, введено в эксплуатацию 2021 года Планировка: 2С7, имеет 2 спальни, кухня-студия, 2 санузла, гардеробная и большой балкон на две комнаты. Вид из окон выходить на улицу Причальная, где тихо и безопасно.

Дополнительная информация

Похожие предложения