2k apartment vul. Prychal'na 14

  • Darnytskyi District vul. Prychal'na 14
  • Code: SF-3-243-661
  • Added by: 20.11.2025
  • Add to favorites
Market type
Primary market
Street
vul. Prychal'na 14
Number of rooms
2
Floor
2 Floor
Number of storeys
26 storey house
Total area
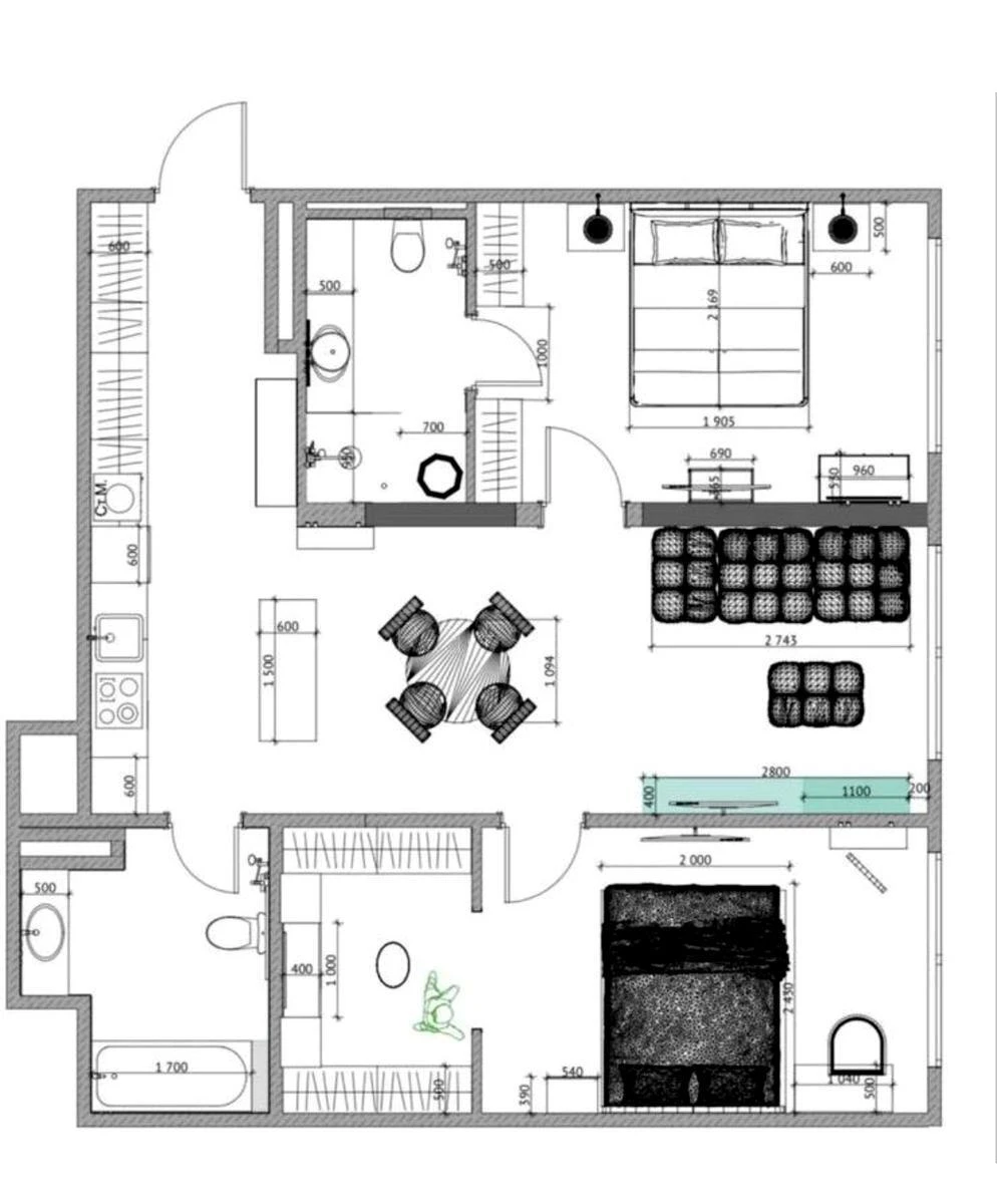
83 м2
General state
Without repair
Price:
4 418 274 UAH
105 000 USD
  • AXIS Real Estate
  • AXIS Real Estate
  • AXIS Real Estate
Description of the object

Great residential complex, 2-bedroom apartment. House 2, floor 2/25, commissioned in 2021 Layout: 2C7, has 2 bedrooms, a kitchen-studio, 2 bathrooms, a dressing room and a large balcony for two rooms. The view from the windows overlooks Prychalna Street, where it is quiet and safe.

Additional Information

Similar offers