2к квартира ул. Липковского Василия Митрополита 37Д

  • Соломенский район ул. Липковского Василия Митрополита 37Д
  • Код: SF-3-308-310
  • Добавлено: 23.04.2026
  • Добавить в избранное
Тип рынка
Вторичный рынок
Улица
ул. Липковского Василия Митрополита 37Д
Количество комнат
2
Этаж
17 Этаж
Этажность
25 этажный дом
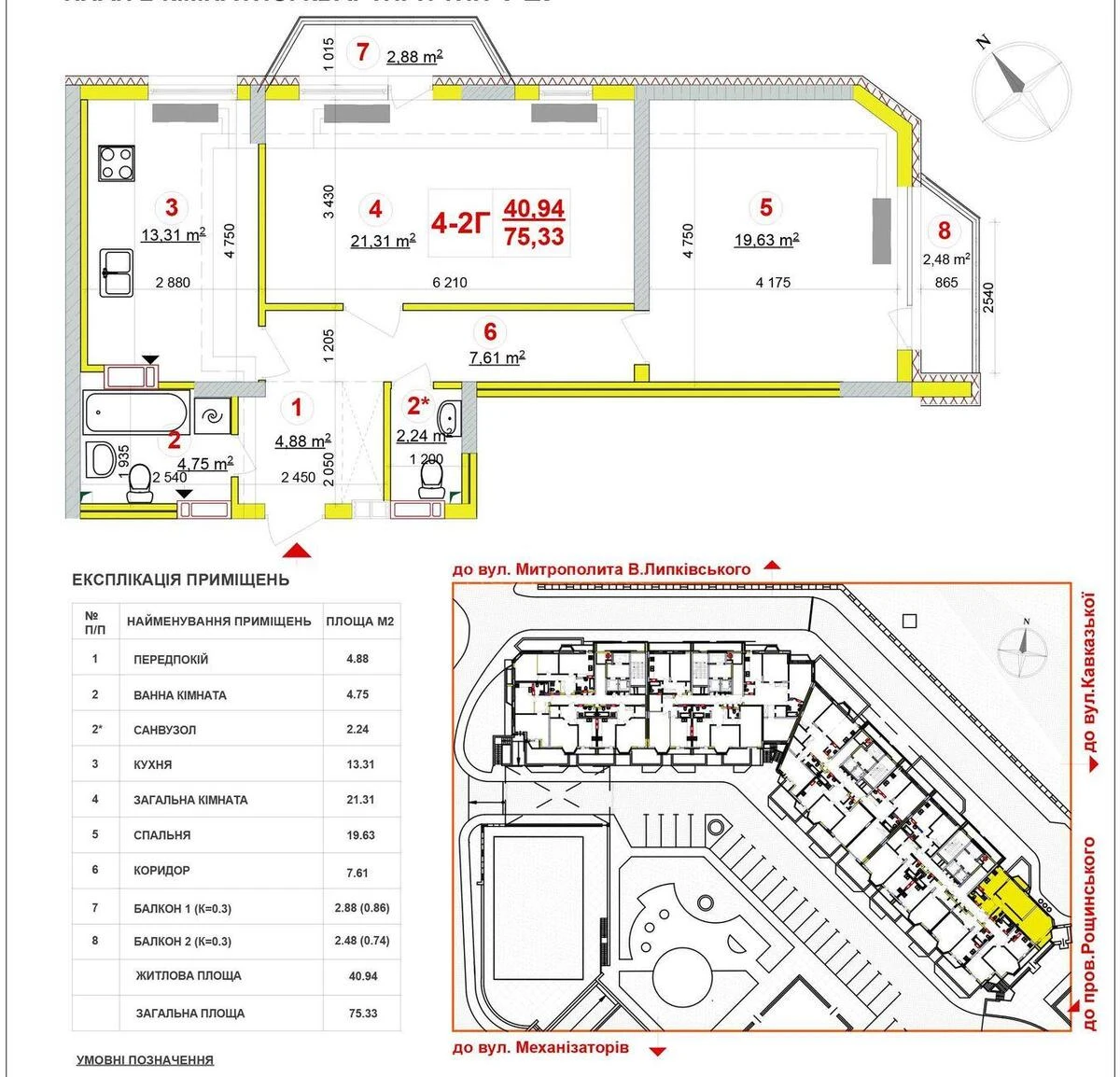
Общая площадь
76 м2
Общее состояние
Без ремонта
Цена:
5 628 422 грн.
127 500 USD
Описание объекта

ЖК «Династия», 2-комнатная квартира. Просторная двухкомнатная квартира с раздельной планировкой — две отдельные комнаты, кухня, два санузла и два балкона. Планировка позволяет легко переоборудовать квартиру в трёхкомнатную. Квартира после строителей, без отделки — отличный вариант для тех, кто хочет реализовать собственный дизайнерский проект. Из панорамных окон открывается захватывающий вид на центр Киева. Современный жилой комплекс с закрытой территорией и охраной по периметру и в подъездах. В доме есть лифт, грузовой лифт, видеонаблюдение, консьерж и автономный электрогенератор, что гарантирует комфорт даже во время отключений электроэнергии. На первых этажах расположены коммерческие помещения — продуктовый магазин, кафе, салон красоты, стоматология, детский сад и другие сервисы для удобства жильцов. Жилой комплекс отличается отличным расположением — всего 10 минут пешком до метро «Вокзальная». В непосредственной близости — школа, супермаркеты, кафе, спортзал, клиники, салоны красоты и другие объекты городской инфраструктуры. Комплекс имеет закрытый двор с охраной и прекрасно ухоженную территорию.

Похожие предложения