2k apartment vul. Lypkivs'kogo Vasylja Mytropolyta 37Д

  • Solomianskyi District vul. Lypkivs'kogo Vasylja Mytropolyta 37Д
  • Code: SF-3-308-310
  • Added by: 23.04.2026
  • Add to favorites
Market type
Secondary market
Street
vul. Lypkivs'kogo Vasylja Mytropolyta 37Д
Number of rooms
2
Floor
17 Floor
Number of storeys
25 storey house
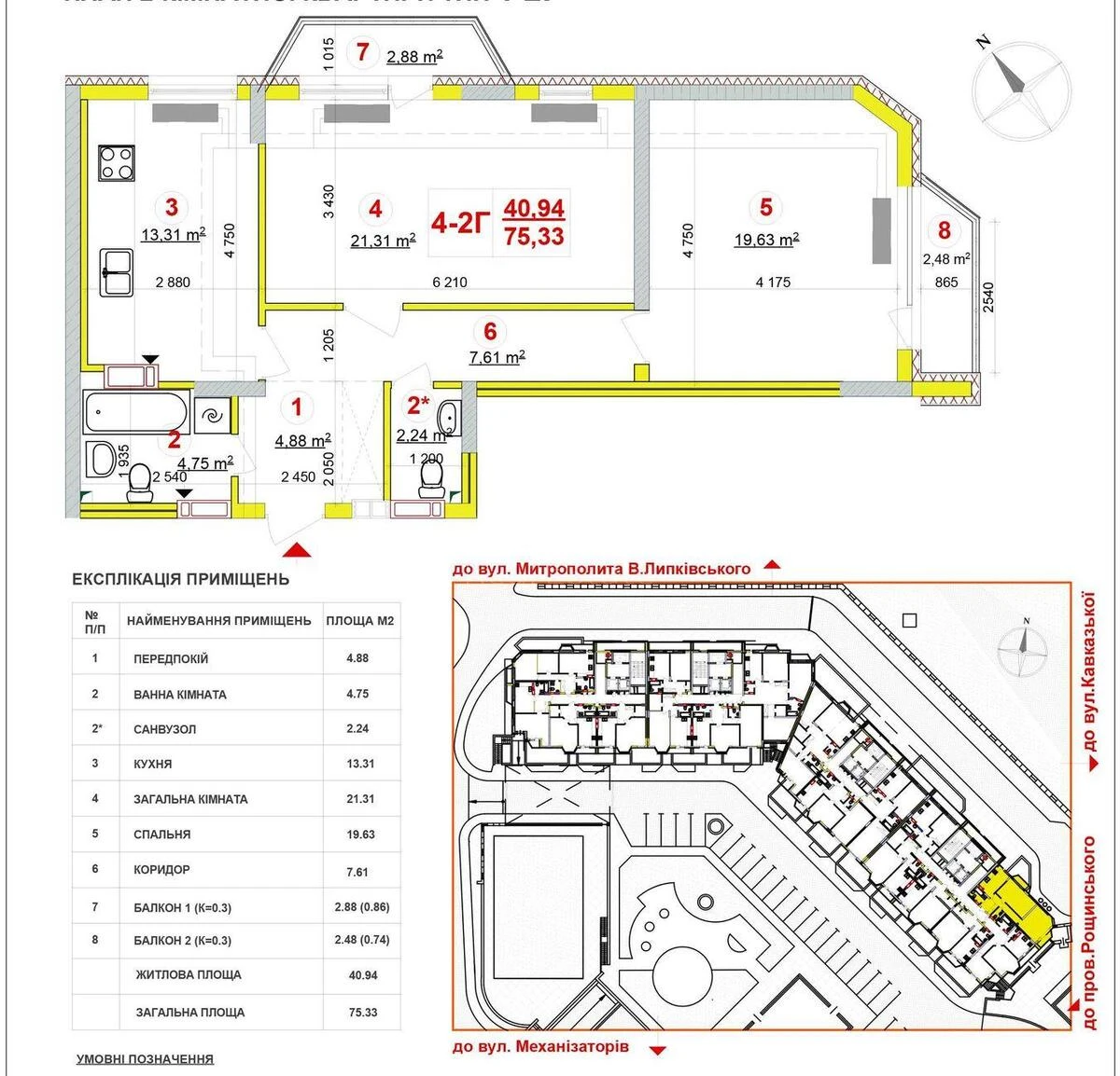
Total area
76 м2
General state
Without repair
Price:
5 628 422 UAH
127 500 USD
Description of the object

Dynasty residential complex, 2-bedroom flat. A spacious two-bedroom flat with a separate layout – two separate rooms, a kitchen, two bathrooms and two balconies. The layout makes it easy to convert the property into a three-bedroom flat. The flat is in a ‘shell’ condition, without finishing — a great option for those who want to realise their own design project. The panoramic windows offer a breathtaking view of the centre of Kyiv. A modern residential complex with a gated area and security along the perimeter and in the entrances. The building features a lift, a goods lift, CCTV, a concierge and an independent generator, ensuring comfort even during power cuts. The ground floors house commercial premises — a grocery shop, a café, a beauty salon, a dental practice, a nursery and other services for residents’ convenience. The residential complex boasts an excellent location — just a 10-minute walk to Vokzalna metro station. In the immediate vicinity are a school, supermarkets, cafés, a gym, clinics, beauty salons and other urban amenities. The complex features a secure, enclosed courtyard and beautifully maintained grounds.

Similar offers