2к квартира ул. Бережанская 15

  • Оболонский район ул. Бережанская 15
  • Код: SF-3-288-087
  • Добавлено: 21.04.2026
  • Добавить в избранное
Тип рынка
Первичный рынок
Улица
ул. Бережанская 15
Количество комнат
2
Этаж
2 Этаж
Этажность
25 этажный дом
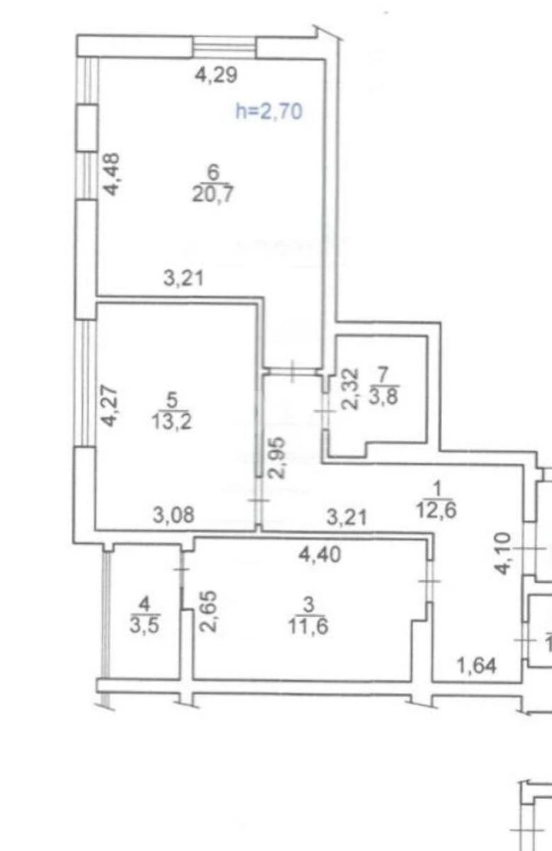
Общая площадь
67 м2
Общее состояние
Без ремонта
Цена:
3 297 871 грн.
75 000 USD
Описание объекта

ЖК Бережанський, 2 кімнатна квартира. Будинок введений в експлуатацію та заселений в 2021 році. Закрита територія, консьерж, відеонагляд. Встановлений генератор, завжди працюють літи, опалення та водопостачання. В новому ЖК 'Бережанський'. Зручне та функціональне планування .

Похожие предложения