2k apartment vul. Berezhans'ka 15

  • Obolonskyi District vul. Berezhans'ka 15
  • Code: SF-3-288-087
  • Added by: 21.04.2026
  • Add to favorites
Market type
Primary market
Street
vul. Berezhans'ka 15
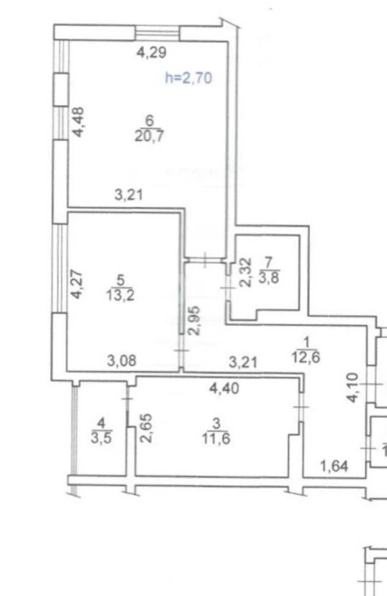
Number of rooms
2
Floor
2 Floor
Number of storeys
25 storey house
Total area
67 м2
General state
Without repair
Price:
3 297 871 UAH
75 000 USD
Description of the object

ЖК Бережанський, 2 кімнатна квартира. Будинок введений в експлуатацію та заселений в 2021 році. Закрита територія, консьерж, відеонагляд. Встановлений генератор, завжди працюють літи, опалення та водопостачання. В новому ЖК 'Бережанський'. Зручне та функціональне планування .

Similar offers