Продажа

Все фото (6)
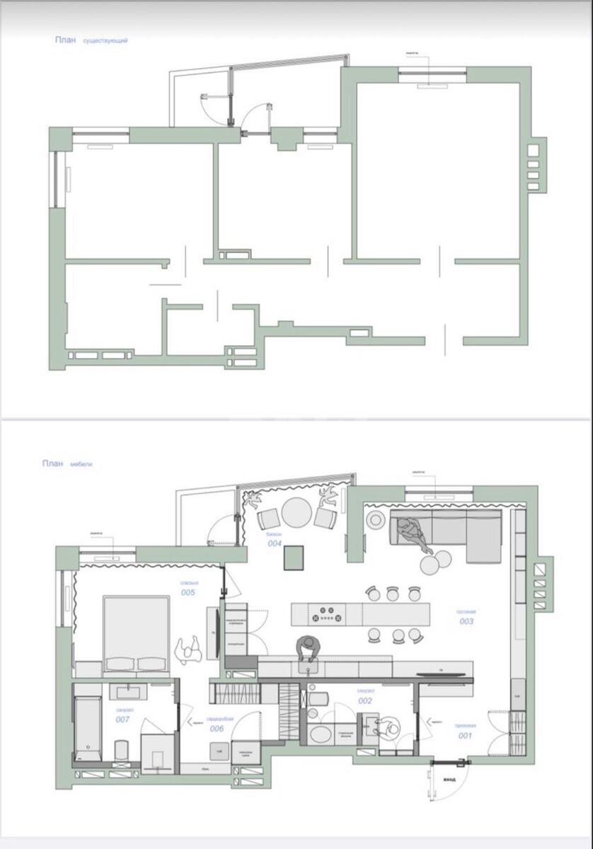
2к квартира ул. Багговутовская 1
- Добавить в избранное
-
Поделиться ссылкой
Тип рынка
Первичный рынок
Улица
ул. Багговутовская 1
Количество комнат
2
Этаж
7 Этаж
Этажность
24 этажный дом
Общая площадь
72 м2
Общее состояние
С ремонтом
Цена:
6 397 038 грн.
155 000 USD
Описание объекта
ЖК Кирилловский Гай, 2 комнатная квартира. Современный новый дом с подземным паркингом, прекрасным видом на лесопарк, свежий воздух, рядом больница, остановка местного транспорта, аптека, магазины. Квартира с современным ремонтом, кухня студии, отдельно спальня, гардеробная, ванная комната, гостевой санузел, балкон. На полу паркет, есть подогрев полов.
Дополнительная информация