Sell

All photos (6)
2k apartment vul. Baggovutivs'ka 1
- Add to favorites
-
Share link
Market type
Primary market
Street
vul. Baggovutivs'ka 1
Number of rooms
2
Floor
7 Floor
Number of storeys
24 storey house
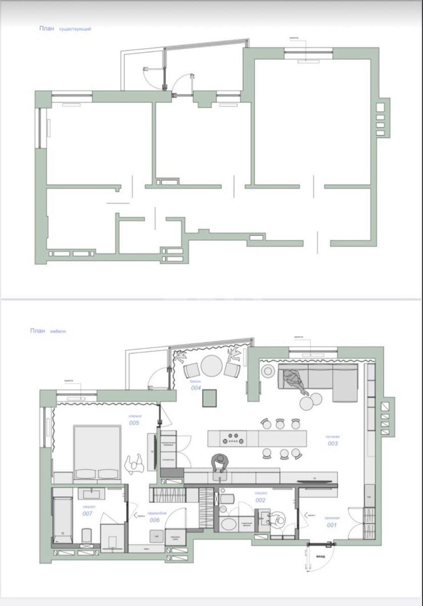
Total area
72 м2
General state
With repair
Price:
6 397 038 UAH
155 000 USD
Description of the object
Kyrylivskyi Hai residential complex, 2-bedroom apartment. Modern new house with underground parking, beautiful views of the forest park, fresh air, near a hospital, local transport stop, pharmacy, shops. Modernly renovated apartment, studio kitchen, separate bedroom, dressing room, bathroom, guest bathroom, balcony. The floor is parquet, there is underfloor heating.
Additional Information