2к квартира ул. Антоновича 136

  • Голосеевский район ул. Антоновича 136
  • Код: SF-3-242-250
  • Добавлено: 18.11.2025
  • Добавить в избранное
Тип рынка
Первичный рынок
Улица
ул. Антоновича 136
Количество комнат
2
Этаж
7 Этаж
Этажность
33 этажный дом
Общая площадь
108 м2
Общее состояние
Без ремонта
Цена:
11 867 024 грн.
282 000 USD
  • AXIS Real Estate
  • AXIS Real Estate
  • AXIS Real Estate
Описание объекта

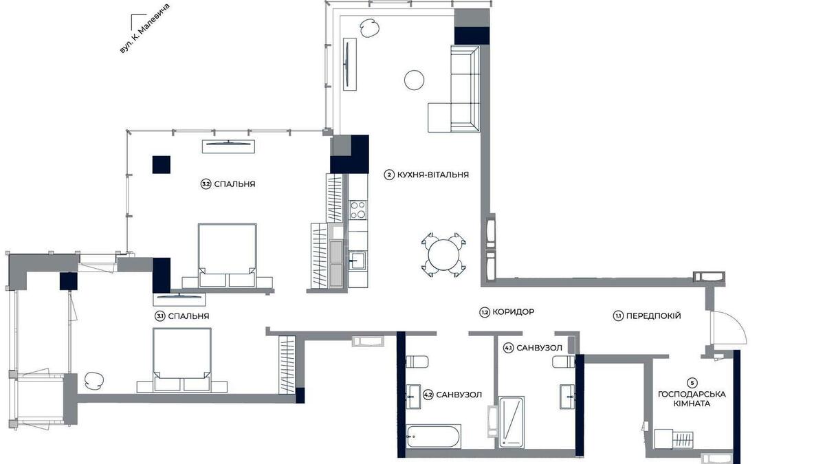
МФК А136 Highlight Tower, 2 комнатная квартира. Планировка: кухня-гостиная - просторная зона для отдыха и встреч с панорамными окнами. 2 спальни - тихая приватная зона с большими окнами и местом под гардероб. 2 санузла - один с ванной, другой с душем. Хозяйственная комната - идеально под прачечную/сушку и хранение вещей. Прихожая и коридор - функционально продуманы для удобства. Панорамные окна открывают невероятный вид на город.

Дополнительная информация

Похожие предложения