2k apartment vul. Antonovycha 136

  • Holosiivskyi District vul. Antonovycha 136
  • Code: SF-3-242-250
  • Added by: 18.11.2025
  • Add to favorites
Market type
Primary market
Street
vul. Antonovycha 136
Number of rooms
2
Floor
7 Floor
Number of storeys
33 storey house
Total area
108 м2
General state
Without repair
Price:
11 867 024 UAH
282 000 USD
  • AXIS Real Estate
  • AXIS Real Estate
  • AXIS Real Estate
Description of the object

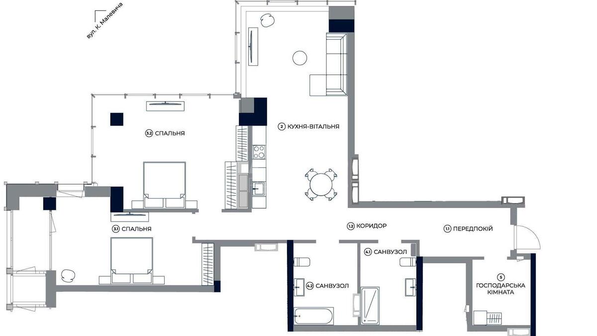
IFC A136 Highlight Tower, 2-room apartment. Layout: kitchen-living room - a spacious area for relaxation and meetings with panoramic windows. 2 bedrooms - a quiet private area with large windows and a place for a wardrobe. 2 bathrooms - one with a bathtub, the other with a shower. Utility room - ideal for washing/drying and storage. The hallway and corridor are functionally designed for convenience. Panoramic windows offer incredible views of the city.

Additional Information

Similar offers