2к квартира пр-т Европейского Союза 1

  • Подольский район пр-т Европейского Союза 1
  • Код: SF-3-249-621
  • Добавлено: 25.02.2026
  • Добавить в избранное
Тип рынка
Первичный рынок
Улица
пр-т Европейского Союза 1
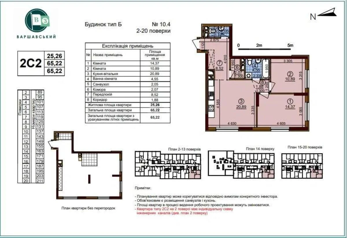
Количество комнат
2
Этаж
3 Этаж
Этажность
25 этажный дом
Общая площадь
65 м2
Общее состояние
Без ремонта
Цена:
3 811 260 грн.
88 000 USD
Описание объекта

ЖК Варшавский 3, 2 комнатная квартира. Состояние после строителей. На полу лазерная стяжка, проведены каналы под электропроводку, пожарная сигнализация, счетчики на холодную, горячую воду, электроэнергию, входные металлические, противопожарные двери, металлопластиковые окна Rehau с двухкамерным стеклопакетом. в доме резервное электрическое питание, застройщиком установлен генератор.

Похожие предложения