2k apartment pr-t Yevropeyskoho Soyuzu 1

  • Podilskyi District pr-t Yevropeyskoho Soyuzu 1
  • Code: SF-3-249-621
  • Added by: 25.02.2026
  • Add to favorites
Market type
Primary market
Street
pr-t Yevropeyskoho Soyuzu 1
Number of rooms
2
Floor
3 Floor
Number of storeys
25 storey house
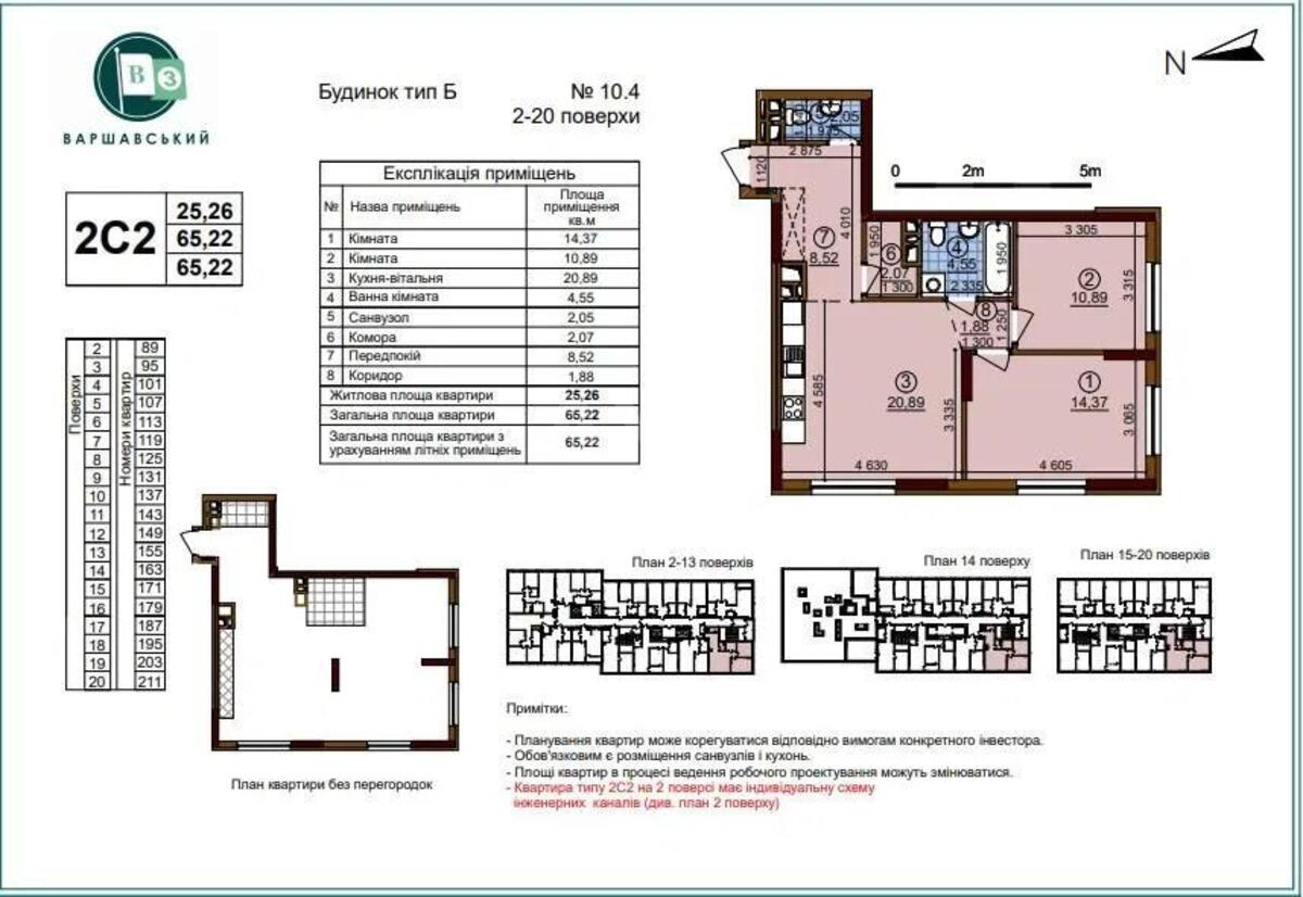
Total area
65 м2
General state
Without repair
Price:
3 811 260 UAH
88 000 USD
Description of the object

RC Varshavsky 3, 2-bedroom apartment. Condition after the builders. Laser screed on the floor, channels for electrical wiring, fire alarm, meters for cold, hot water, electricity, metal entrance, fire doors, Rehau plastic windows with double-glazed windows.The house has a backup power supply, the developer has installed a generator.

Similar offers