2к квартира пр-т Европейского Союза 1

  • Подольский район пр-т Европейского Союза 1
  • Код: SF-3-236-065
  • Добавлено: 05.11.2025
  • Добавить в избранное
Тип рынка
Первичный рынок
Улица
пр-т Европейского Союза 1
Количество комнат
2
Этаж
8 Этаж
Этажность
25 этажный дом
Общая площадь
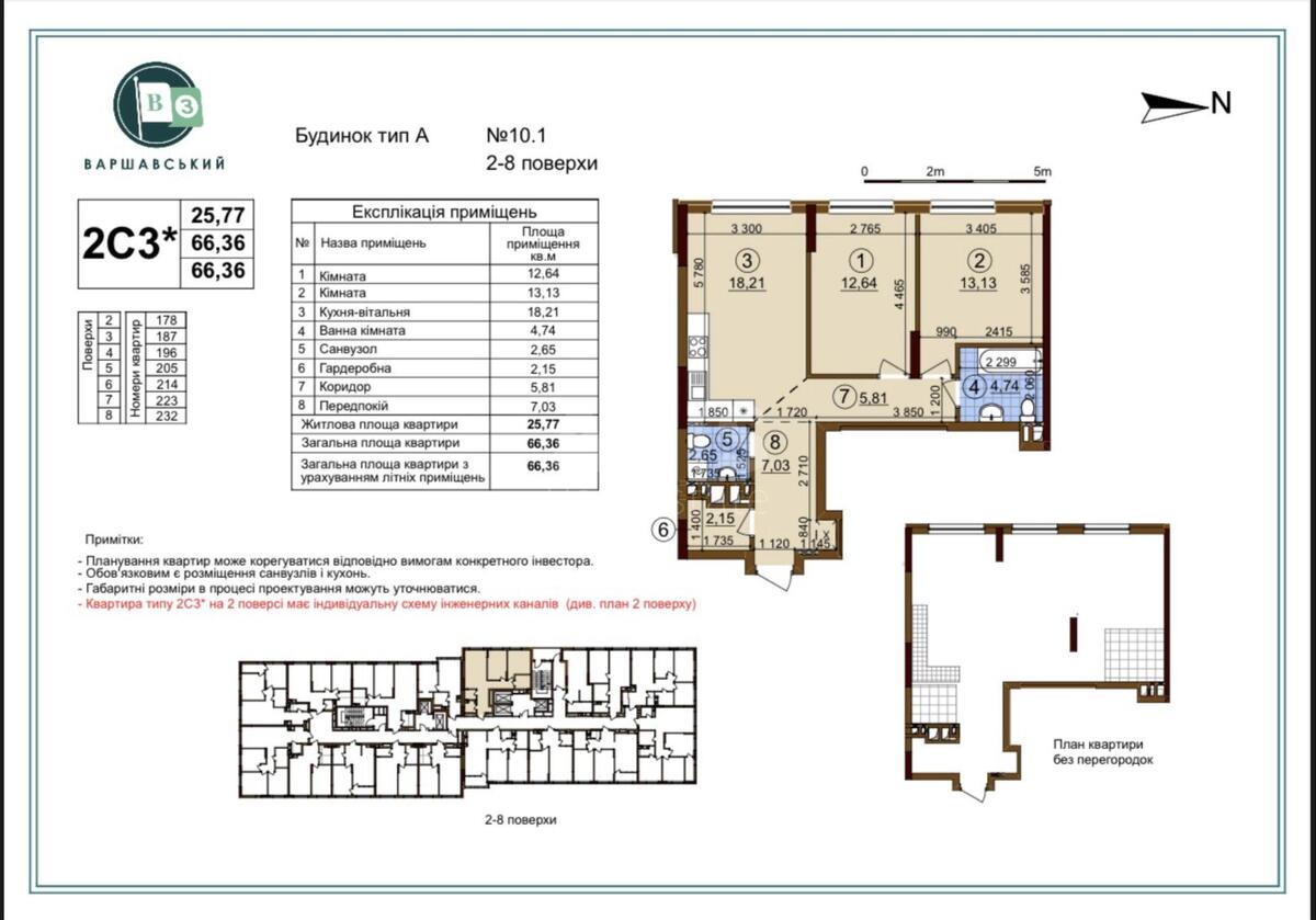
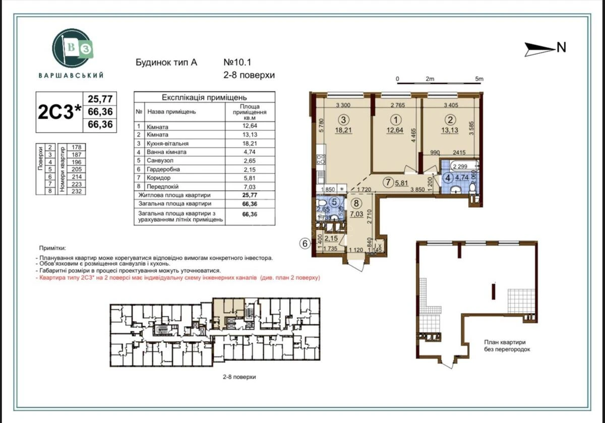
65 м2
Общее состояние
С ремонтом
Цена:
6 770 372 грн.
159 999 USD
  • AXIS Real Estate
  • AXIS Real Estate
  • AXIS Real Estate
Описание объекта

ЖК Варшавский 3, 2 комнатная квартира. Квартира с качественным дизайнерским ремонтом в современном стиле. Продуманная планировка: просторная кухня-гостиная с обеденной зоной, уютная спальня, гостевая комната, функциональная ванная и отдельная зона хранения. Вся мебель и техника - премиум-класса, изготовленные на заказ, установлена встроенная кухня с бытовой техникой AEG, система подсветки, декоративные панели, кондиционирование, тропический душ, система очистки воды.

Дополнительная информация

Похожие предложения