2k apartment pr-t Yevropeyskoho Soyuzu 1

  • Podilskyi District pr-t Yevropeyskoho Soyuzu 1
  • Code: SF-3-236-065
  • Added by: 05.11.2025
  • Add to favorites
Market type
Primary market
Street
pr-t Yevropeyskoho Soyuzu 1
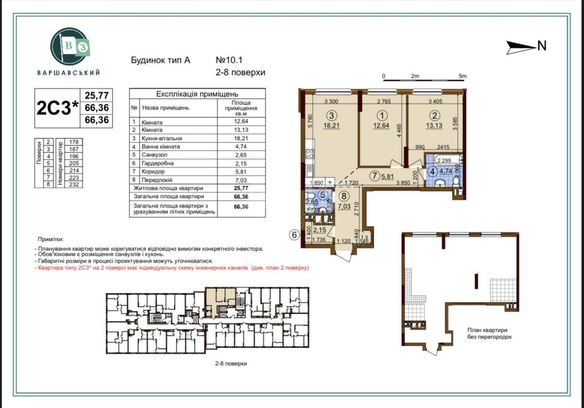
Number of rooms
2
Floor
8 Floor
Number of storeys
25 storey house
Total area
65 м2
General state
With repair
Price:
6 770 372 UAH
159 999 USD
  • AXIS Real Estate
  • AXIS Real Estate
  • AXIS Real Estate
Description of the object

RC Varshavsky 3, 2-room apartment. The apartment has a high-quality designer renovation in a modern style. Thoughtful layout: spacious kitchen-living room with dining area, cozy bedroom, guest room, functional bathroom and separate storage area. All furniture and appliances are of premium quality, made to order, there is a built-in kitchen with AEG appliances, a lighting system, decorative panels, air conditioning, a rain shower, a water purification system.

Additional Information

Similar offers