2к квартира пр-т Берестейский 55

  • Шевченковский район пр-т Берестейский 55
  • Код: SF-3-266-490
  • Добавлено: 24.02.2026
  • Добавить в избранное
Тип рынка
Первичный рынок
Улица
пр-т Берестейский 55
Количество комнат
2
Этаж
12 Этаж
Этажность
20 этажный дом
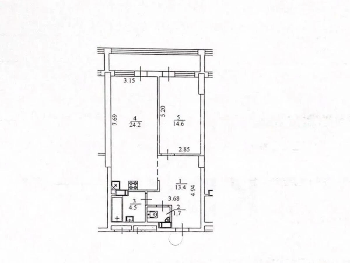
Общая площадь
66 м2
Общее состояние
Без ремонта
Цена:
4 847 275 грн.
112 000 USD
Описание объекта

ЖК Берестейський, 2 кімнатна квартира. У квартирі виконано підготовчі роботи: проведено штукатурку та стяжку, прокладено мідну електропроводку, встановлено радіатори опалення. Стіни з червоної керамічної цегли утеплені мінеральною ватою, що забезпечує високу теплоізоляцію. Два балкони також підготовлені – поштукатурені та обладнані склопакетами. Будинок побудовано за цегляною технологією, з автономною котельнею, що забезпечує незалежне опалення. Для безпеки мешканців встановлено електронно-карткову систему доступу, працює цілодобовий консьєрж, відеодомофон, а також відеоспостереження на території. На території ЖК передбачено озеленення та зони відпочинку, а також штучну водойму. Для мешканців облаштована підземна парковка з сімейними місцями та мотоместами, оснащена охороною, відеоспостереженням, кімнатою для охорони й автоматичними воротами. Для дітей – сучасний ігровий майданчик, а для активного відпочинку – басейн та зона воркауту.

Похожие предложения