2k apartment pr-t Berestejskij 55

  • Shevchenkivskyi District pr-t Berestejskij 55
  • Code: SF-3-266-490
  • Added by: 15.01.2026
  • Add to favorites
Market type
Primary market
Street
pr-t Berestejskij 55
Number of rooms
2
Floor
12 Floor
Number of storeys
20 storey house
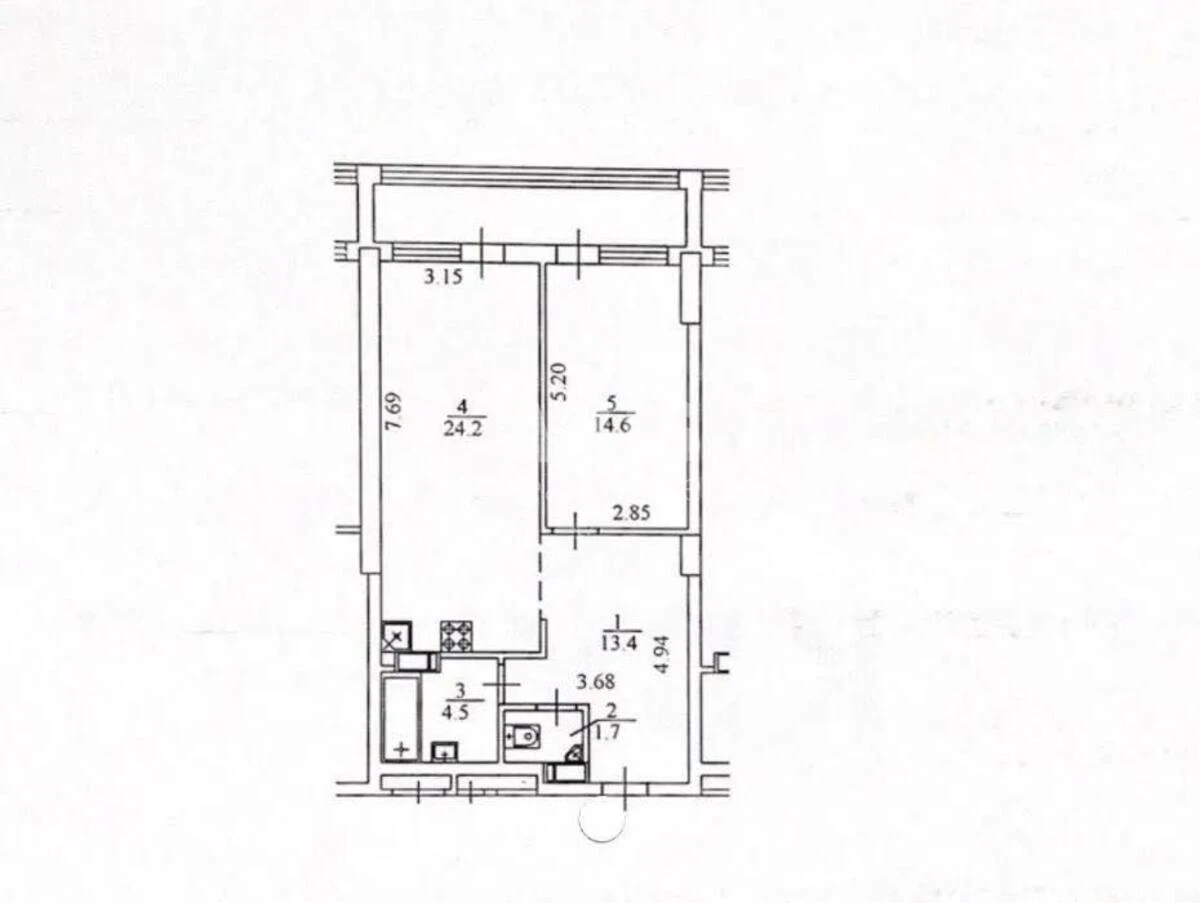
Total area
66 м2
General state
Without repair
Price:
4 264 485 UAH
99 000 USD
Description of the object

Brestsky residential complex, 2-room apartment. Preparatory work has been completed in the apartment: plastering and screeding have been carried out, copper electrical wiring has been laid, and heating radiators have been installed. The red ceramic brick walls are insulated with mineral wool, which provides high thermal insulation. Two balconies have also been prepared – plastered and equipped with double-glazed windows. The building was constructed using brick technology, with an autonomous boiler room that provides independent heating. For the safety of residents, an electronic card access system has been installed, and there is a 24-hour concierge, video intercom, and video surveillance on the premises. The residential complex has landscaping and recreation areas, as well as an artificial pond. For residents, there is an underground parking lot with family spaces and motorcycle spaces, equipped with security, video surveillance, a security room, and automatic gates. For children, there is a modern playground, and for active recreation, there is a swimming pool and a workout area.