1к квартира ул. Евгения Коновальца 30

  • Печерский район ул. Евгения Коновальца 30
  • Код: SF-3-262-025
  • Добавлено: 25.02.2026
  • Добавить в избранное
Тип рынка
Первичный рынок
Улица
ул. Евгения Коновальца 30
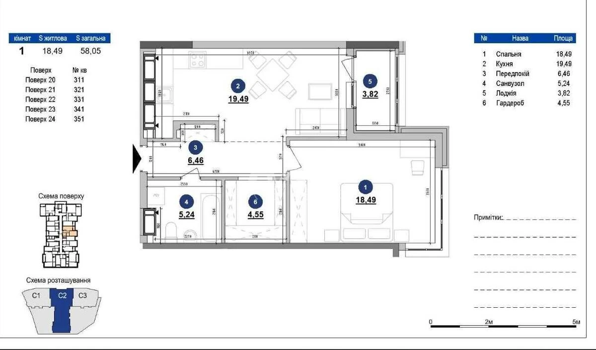
Количество комнат
1
Этаж
20 Этаж
Этажность
26 этажный дом
Общая площадь
58 м2
Общее состояние
Без ремонта
Цена:
4 980 624 грн.
115 000 USD
Описание объекта

ЖК MAXIMA RESIDENCE, 1 комнатная квартира. Квартира под чистовую отделку, что позволяет реализовать собственный дизайнерский проект и создать пространство под ваш стиль и потребности. По 5 квартир на этаже. 3 лифта в каждой секции, один из которых спускается прямо в подземный паркинг. Центр города, Печерск. Современная архитектура и качественное строительство. Закрытая территория, охрана, видеонаблюдение.

Похожие предложения