1k apartment vul. Jevgena Konoval'cja 30

  • Pecherskyi District vul. Jevgena Konoval'cja 30
  • Code: SF-3-262-025
  • Added by: 25.02.2026
  • Add to favorites
Market type
Primary market
Street
vul. Jevgena Konoval'cja 30
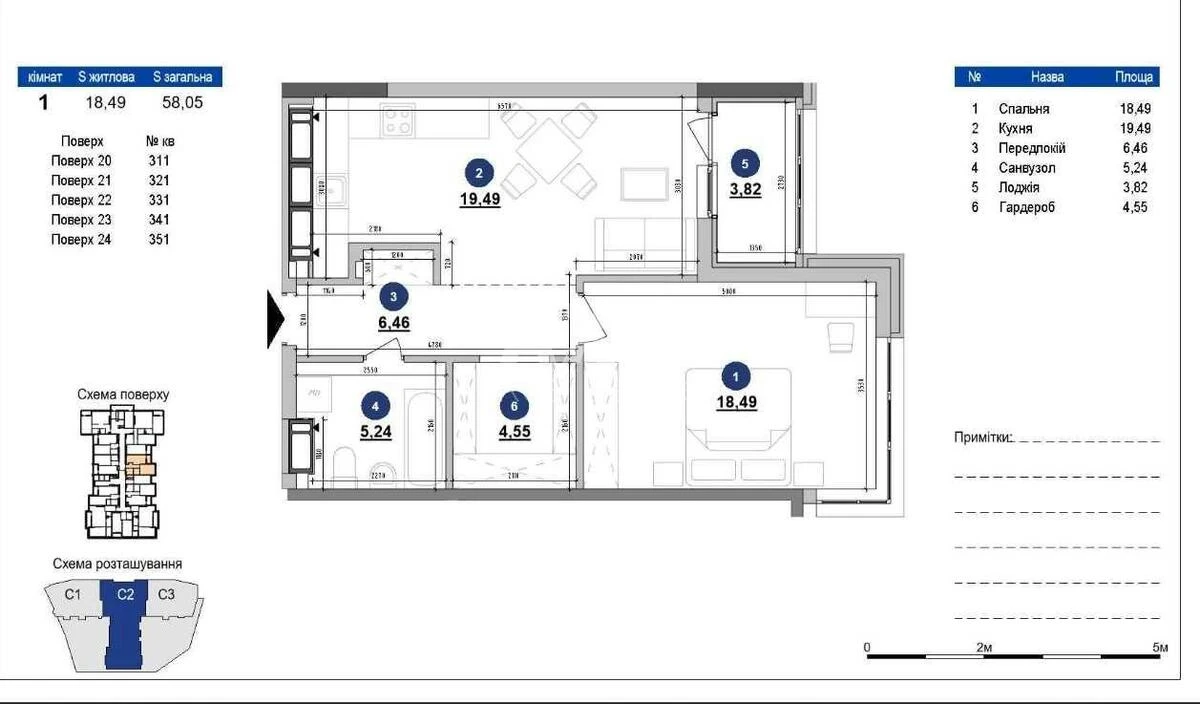
Number of rooms
1
Floor
20 Floor
Number of storeys
26 storey house
Total area
58 м2
General state
Without repair
Price:
4 980 624 UAH
115 000 USD
Description of the object

MAXIMA RESIDENCE residential complex, 1-room apartment. The apartment is ready for finishing, allowing you to implement your own design project and create a space that suits your style and needs. There are 5 apartments on each floor. Each section has 3 elevators, one of which goes directly to the underground parking lot. City center, Pechersk. Modern architecture and high-quality construction. Gated community, security, video surveillance.

Similar offers