1к квартира ул. Глубочицкая 73

  • Шевченковский район ул. Глубочицкая 73
  • Код: SF-3-281-307
  • Добавлено: 22.02.2026
  • Добавить в избранное
Тип рынка
Первичный рынок
Улица
ул. Глубочицкая 73
Количество комнат
1
Этаж
8 Этаж
Этажность
24 этажный дом
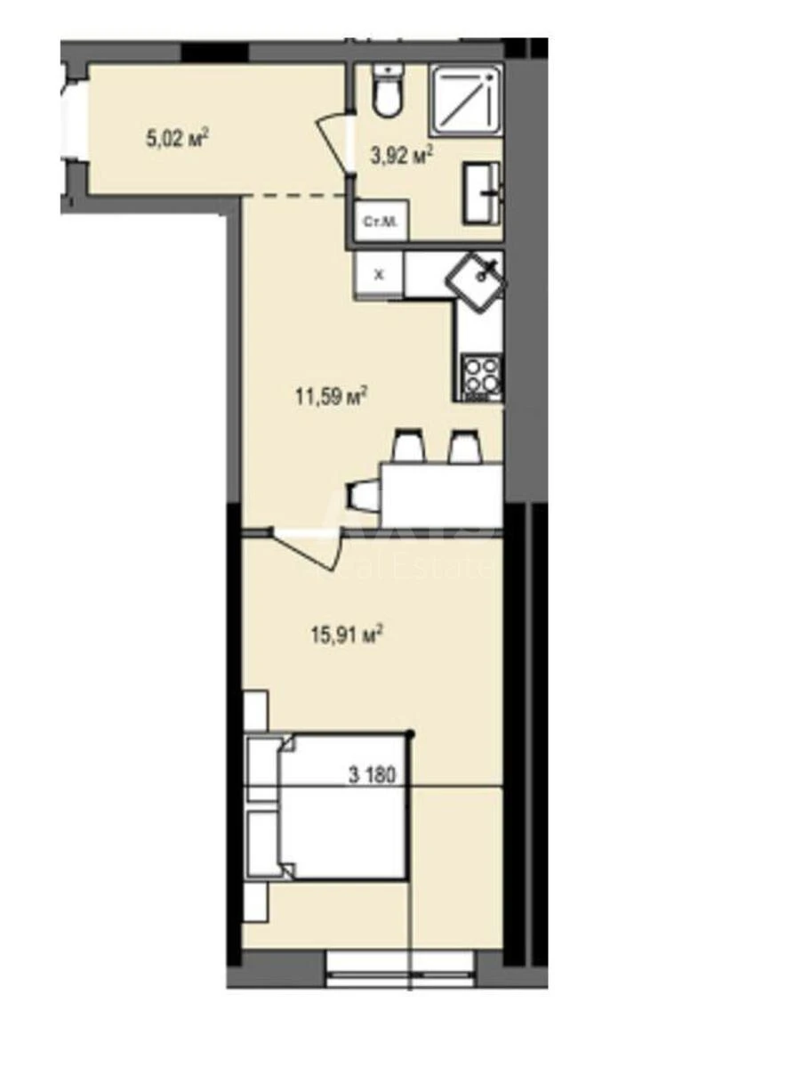
Общая площадь
36 м2
Общее состояние
С ремонтом
Цена:
2 416 256 грн.
55 800 USD
Описание объекта

ЖК Podil Plaza & Residence, 1 комнатная квартира. Кухня-гостиная - 27,5м2. 7-10 этажи/16 этажное здание. Строится, ввод в эксплуатацию 4 кв. 2026 г. Много вариантов 1,2,3 комнатные квартиры, коммерческие помещения. Красивый ЖК и его территория.

Похожие предложения