1k apartment vul. Glybochyc'ka 73

  • Shevchenkivskyi District vul. Glybochyc'ka 73
  • Code: SF-3-281-307
  • Added by: 22.02.2026
  • Add to favorites
Market type
Primary market
Street
vul. Glybochyc'ka 73
Number of rooms
1
Floor
8 Floor
Number of storeys
24 storey house
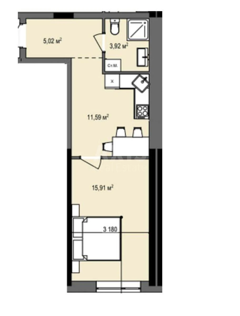
Total area
36 м2
General state
With repair
Price:
2 416 256 UAH
55 800 USD
Description of the object

Podil Plaza & Residence residential complex, 1-bedroom apartment. Kitchen-living room - 27.5 m². 7-10 floors/16 floors. Under construction, commissioning in Q4 2026. Many options for 1, 2, and 3-room apartments and commercial premises. Beautiful residential complex and its territory.

Similar offers