1к квартира шоссе Столичное 1Б

  • Голосеевский район шоссе Столичное 1Б
  • Код: SF-3-298-788
  • Добавлено: 31.03.2026
  • Добавить в избранное
Тип рынка
Первичный рынок
Улица
шоссе Столичное 1Б
Количество комнат
1
Этаж
15 Этаж
Этажность
26 этажный дом
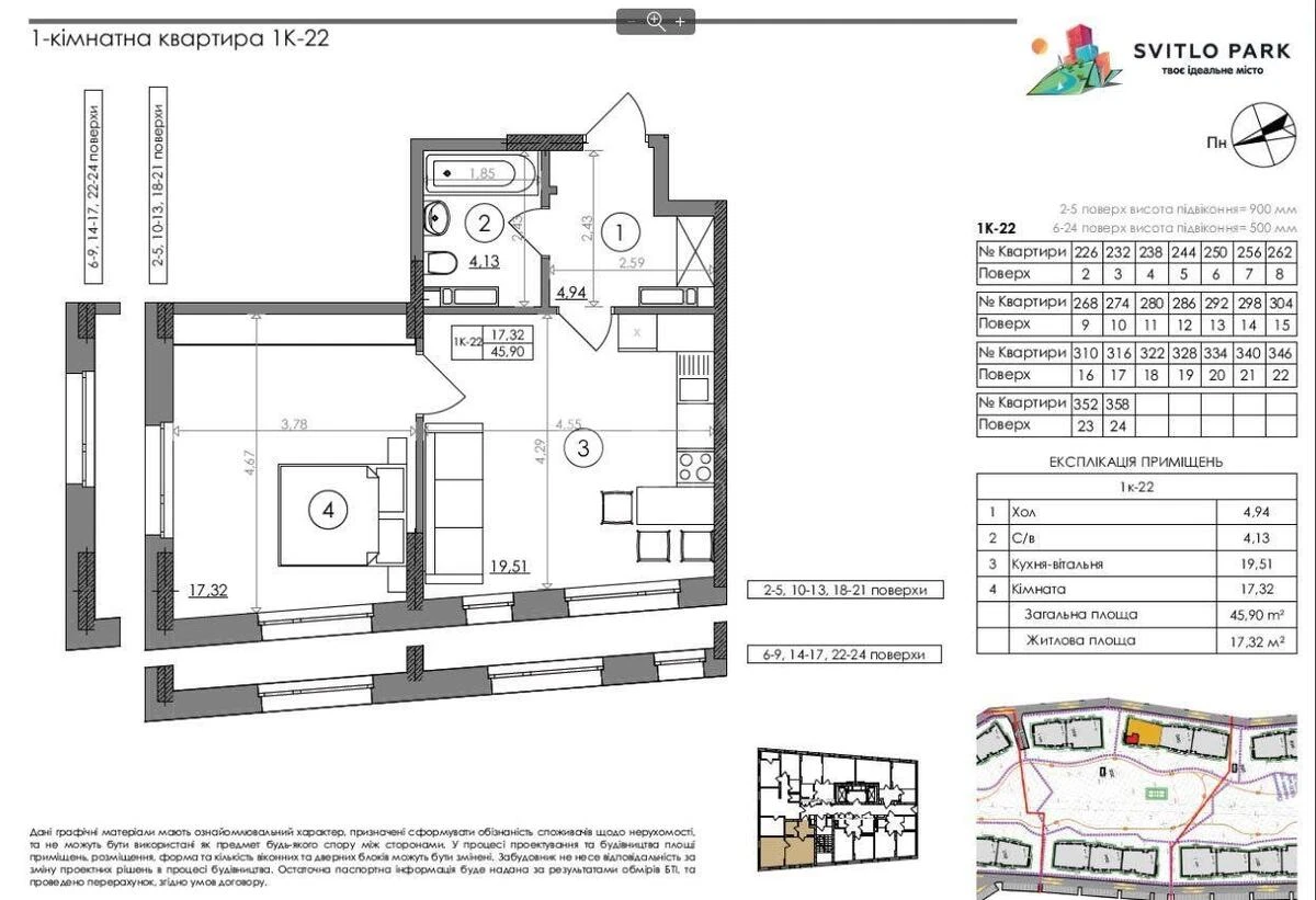
Общая площадь
45 м2
Общее состояние
Без ремонта
Цена:
3 070 257 грн.
70 000 USD
Описание объекта

ЖК «Свитло Парк», 1-комнатная квартира. Квартира большой площади, просторная. Кухня-гостиная с двумя панорамными окнами — 19,51 м², спальня также имеет два панорамных окна — 17 м², а также прихожая с нишей под шкаф-купе или гардероб. Состояние — после строителей. Выполнены все черновые работы. Окна застеклены, установлены входные двери — металлические, надежные и стильные, не требуют замены. Выполнена стяжка пола под лазер, под стяжкой разведено водоснабжение, отопление, подключены радиаторы с терморегуляторами.

Похожие предложения