1k apartment shose Stolychne 1Б

  • Holosiivskyi District shose Stolychne 1Б
  • Code: SF-3-298-788
  • Added by: 31.03.2026
  • Add to favorites
Market type
Primary market
Street
shose Stolychne 1Б
Number of rooms
1
Floor
15 Floor
Number of storeys
26 storey house
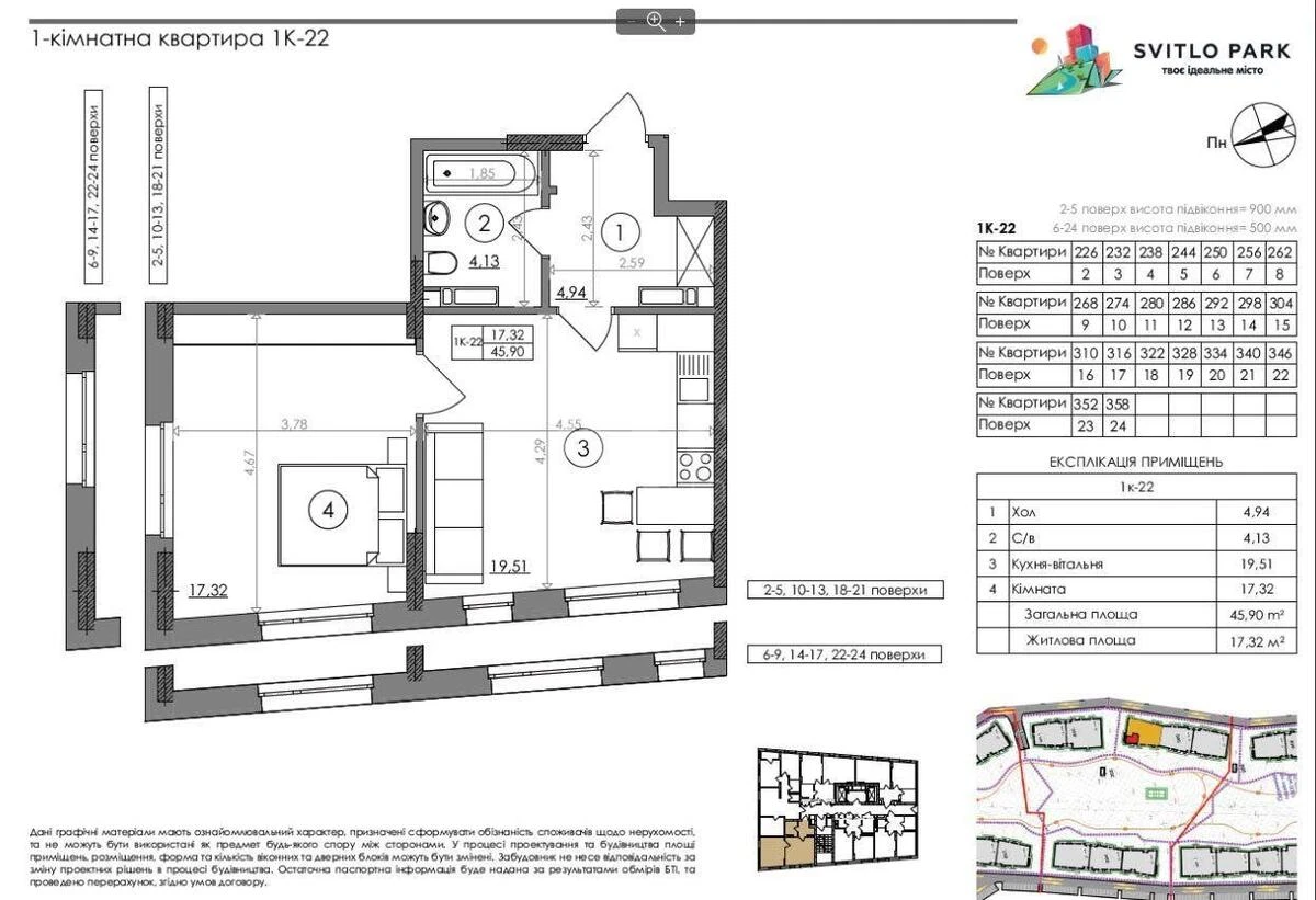
Total area
45 м2
General state
Without repair
Price:
3 070 257 UAH
70 000 USD
Description of the object

Svitlo Park residential complex, 1-bedroom flat. A spacious, generously proportioned flat. The open-plan kitchen-living room features two panoramic windows and measures 19.51 m², whilst the bedroom also has two panoramic windows and measures 17 m². There is a hallway with a recess suitable for a sliding-door wardrobe or a walk-in wardrobe. Condition: post-construction. All rough work has been completed. The windows are glazed, and the front door is metal, secure and stylish, requiring no replacement. The floor screed has been laid using laser levelling; water supply and heating pipes have been laid beneath the screed, and radiators with thermostats have been connected.

Similar offers