1к квартира пр-т Европейского Союза 1

  • Подольский район пр-т Европейского Союза 1
  • Код: SF-3-249-697
  • Добавлено: 25.02.2026
  • Добавить в избранное
Тип рынка
Первичный рынок
Улица
пр-т Европейского Союза 1
Количество комнат
1
Этаж
9 Этаж
Этажность
25 этажный дом
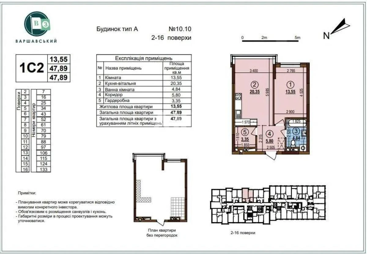
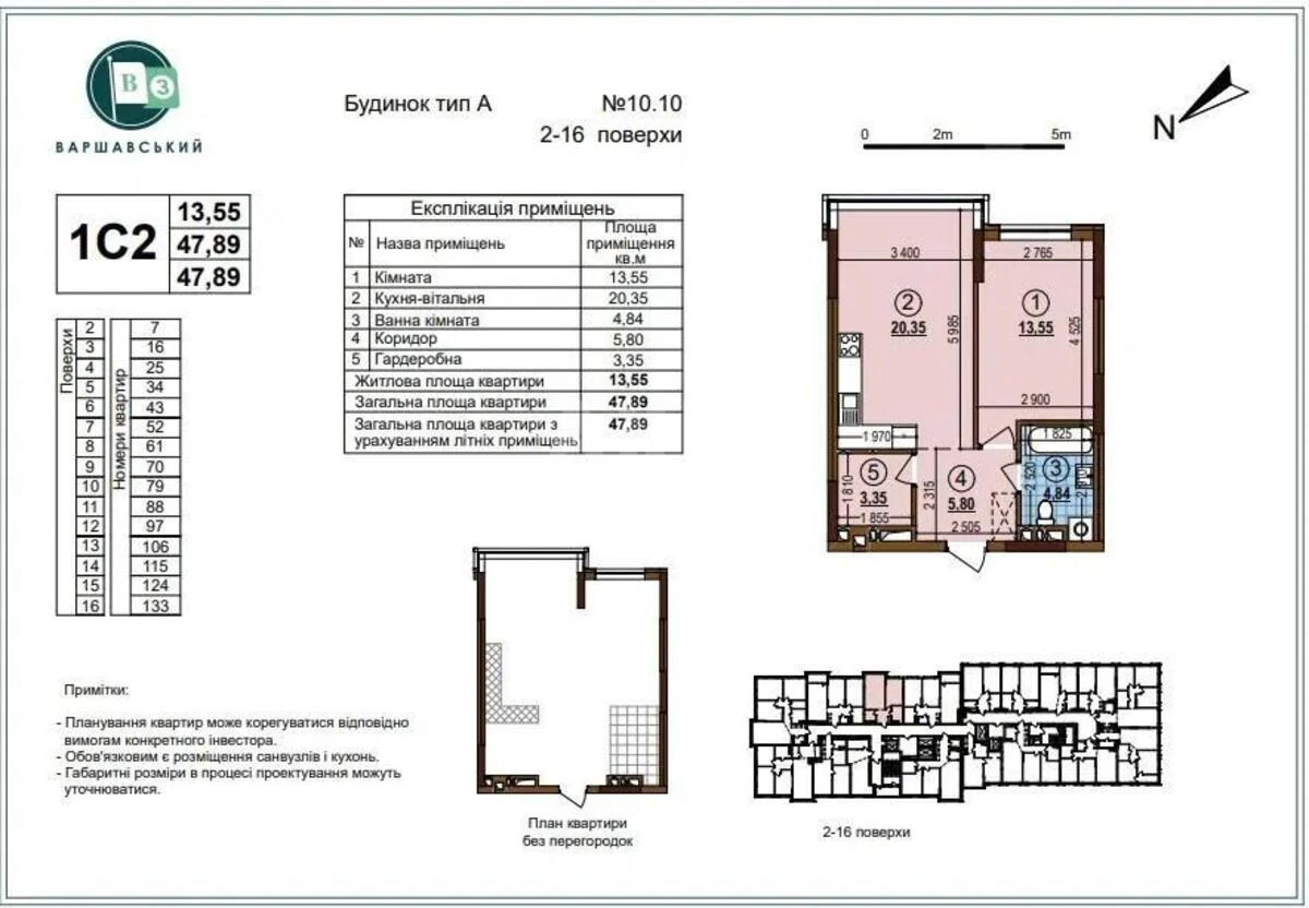
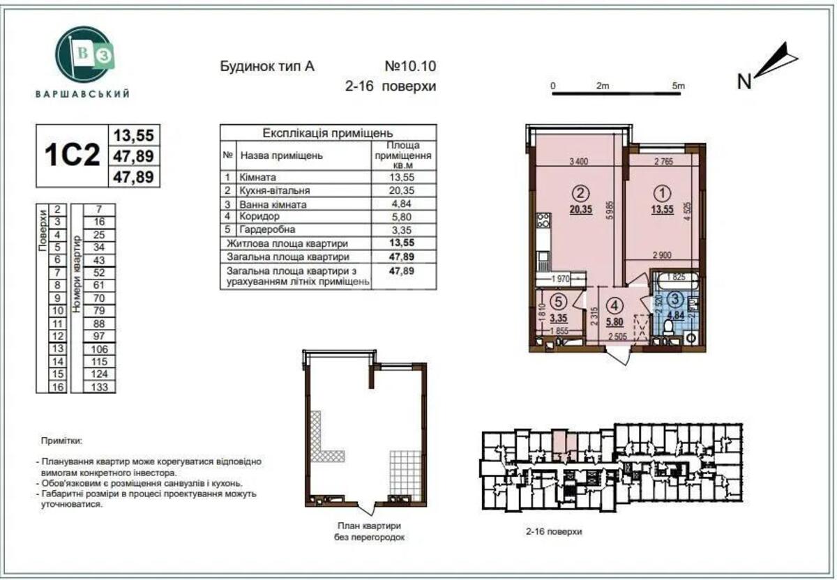
Общая площадь
48 м2
Общее состояние
Без ремонта
Цена:
2 988 374 грн.
69 000 USD
Описание объекта

ЖК Варшавский 3, 1 комнатная квартира. Состояние после строителей. На полу лазерная стяжка, проведены каналы под электропроводку, пожарная сигнализация, счетчики на холодную, горячую воду, электроэнергию, входные металлические, противопожарные двери, металлопластиковые окна Rehau с двухкамерным стеклопакетом. В доме автономное электрическое питание, застройщик установил генератор.

Похожие предложения